Arquitectura moderna en Ecuador
En las primeras décadas del siglo XX hubo dos sucesos que propiciaron el comienzo de la época moderna en el Ecuador. El primero, fue la llegada del ferrocarril a Quito el 25 de junio de 1908; este suceso ayudó a que se comunicaran los dos polos de economía nacional más importantes hasta la época, Quito y Guayaquil. Para esto, se desarrollaron una serie de construcciones y adecuaciones en calzadas para poder implementar la máquina de vapor, cuya incorporación resultaría primordial en la dinamización del comercio interprovincial y con Europa. Este medio de transporte colaboró en la movilización de piezas y materiales de construcción dentro del país (Del Pino, 2009).
El segundo suceso importante fue la exposición nacional celebrada el 10 de agosto de 1909; para este evento cultural y científico, el presidente de aquellos tiempos el Gral. Eloy Alfaro, dispuso la construcción de un edificio que acoja dicho evento, este edificio denominado el « Palacio de la Exposición » (Figura 1), se construyó a base de un sistema mixto de ladrillo, adobe, piezas de cemento y riel de tren, por lo que se podría decir que es el primer edificio que experimentó una aleación entre el hormigón y el hierro. En este evento, se dieron a conocer los logros tecnológicos desarrollados por algunos países de Europa y algunos de Latinoamérica (Vasquez, 1989).
Aunque la transición a la arquitectura moderna fue compleja, tanto en Quito como en Guayaquil, esto debido al intercambio de Ideas entre diferentes profesionales; que, por un lado se encontraban los conservadores, que creían en que se debía mantener la arquitectura ecléctica y neoclásica; y por otro lado profesionales con una posición innovadora, con nuevos sistemas constructivos de hormigón armado y de acero. Por este motivo fue recién para el año de 1935 que se comenzó a evidenciar proyectos de arquitectura moderna; porque hasta la fecha habían predominado las construcciones de edificios públicos y administrativos que contenían arquitectura con ciertas características decorativas y neoclasicistas en la fachada, pero con un criterio arquitectónico funcional y con sistemas constructivos nuevos como el hormigón y el acero (Alcívar, Lee, & Roja, 1980).
Pero sin duda alguna un aporte fundamental a esta nueva arquitectura fue la llegada en 1942 a Quito-Ecuador del arquitecto uruguayo Guillermo Jones Odriozola, a quien se le pediría la realización del Plan Regulador de la capital; para esto, Jones pidió la llegada de sus colegas los arquitectos uruguayos Gilberto Gatto Sobral (Figura 2), Alfredo Altamirano, y Jorge Bobino. Lastimosamente por cuestiones de salud, el arquitecto Jone Odriozola en 1945 viajó a Estados Unidos y posterior a Uruguay a hacer su recuperación; dejando en la dirección de este proyecto a su principal colaborador el arquitecto Gilberto Gatto Sobral; quien se encargaría de diseñar, organizar y dirigir este Plan Regulador. Al ver la gran aceptación que tuvo dicho plan, otros municipios del Ecuador, pedirían al joven arquitecto uruguayo la realización de sus respectivos planes reguladores para sus ciudades; de esta manera, también realizaría los planes de Cuenca, Ambato, Manta, Pelileo, Salcedo, Píllaro y también de la ciudad de Loja (Rivas, 2019). Paralelamente a este proyecto, también se le pediría a Jones Odriozola el diseño de la Escuela de Arquitectura de la Universidad Central del Ecuador, quien hizo algunos bosquejos iniciales del campus que posteriormente tendrían modificaciones, siendo realizadas y concluidas por Gilberto Gatto Sobral (Figura 3yFigura 4). Este a su vez, construiría alguno de los edificios del campus universitario como: el Edificio Administrativo (Figura 5); la Facultad de Jurisprudencia (Figura 6); la Facultad de Economía (Figura 7); y la residencia universitaria (Figura 8); concluyendo con el pasar de los años, las demás edificaciones (Maldonado, 1990). Además, diseñó el pensum académico de la Escuela de Arquitectura, conjuntamente con el arquitecto uruguayo Alfredo Altamirano; así el año escolar comenzaría a funcionar en el periodo 1946-1947 (Benavides, 1995).
En esta nueva Escuela de Arquitectura y Urbanismo de la Universidad Central del Ecuador, se incorporaron también destacados profesionales del exterior, como también profesionales ecuatorianos, los cuales habían realizado sus estudios en el exterior y que regresaron para brindar sus conocimientos obtenidos en diferentes universidades de Europa y Estados Unidos, entre estos profesionales se encontraban: El ingeniero italiano Giovanni Rotta; el arquitecto ecuatoriano Sixto Durán Ballén graduado en la Universidad de Columbia, New York; el Ingeniero Leopoldo Moreno Loor especializado en Londres; el arquitecto ecuatoriano Jaime Dávalos, también graduado en la Universidad de Columbia; el ingeniero Wilson Garcés especializado en el Instituto Tecnológico de Illinois, entre otros (Maldonado, 1976). De esta manera estos docentes iniciaron el proceso de formación de estudiantes que difundirían en lo sucesivo la arquitectura moderna en el país.
El inicio del movimiento moderno en la ciudad de Loja se da entre los años 60 a 80, y se desarrolló gracias algunos acontecimientos importantes que ayudaron a su implementación en la ciudad. Entre estos, se encuentra el Plan Regulador diseñado por el arquitecto Gilberto Gatto Sobral, y que fue presentado en los años 60; ayudando así a ordenar de una manera más prolija la ciudad. Entre las características de este plan se encuentran los retiros de 3 y 5 metros para las nuevas urbanizaciones, lo que permitió crear ante-patios de transición entre lo público y lo privado; haciendo de las viviendas residenciales, lugares con vinculación a su entorno (Bravo, 1999).
Finalmente la principal para el desarrollo de la arquitectura moderna en la ciudad seria el regreso de muchos profesionales lojanos, ya que habían realizado sus estudios en el extranjero o en las nuevas Escuelas de Arquitectura e Ingeniería civil del país, e introdujeron ideas innovadora y nuevas técnicas constructivas a las que se desarrollaban hasta esa época en la ciudad.
Arquitecto Marcelo Rodríguez Palacios
El Arquitecto Marcelo Alfredo Rodríguez Palacios (Figura 9), nace en Loja el 05 de abril de 1926. Realizó sus estudios superiores en la Universidad Central del Ecuador, ingresando a estudiar Arquitectura y Urbanismo en 1946 en la recién fundada Escuela de Arquitectura y Urbanismo de la Universidad Central; formando parte de los primeros 80 alumnos que ingresaron a estudiar dicha carrera. Posteriormente 5 años más tarde, el 22 de julio de 1952 se gradúo de Arquitecto, siendo el 5to graduado de la Escuela de Arquitectura y Urbanismo en el Ecuador y el primero de la ciudad de Loja. Se destacó como alumno en sus años de estudios y tuvo influencias directas de destacados arquitectos, ingenieros o artistas de la modernidad en el país como: Arq. Gilberto Gatto Sobral, Arq. Alfredo Altamirano, Arq. Sixto Duran Vallen, Arq. Jaime Dávalos, Arq. Giovanni Rotta, Karl Kohn, Jaime Andrade, Antonio Jaén Morente, y de los Ingenieros Wilson Garcés, Jorge Casares, Leopoldo Moreno Loor, Jorge Viera y Sergio Guarderas (María, 2020).
Análisis de la obra
Un proyecto se origina en base al estudio de la construcción de la forma, el cual debe ser analizado en como los proyectos responden al Lugar, el análisis de sus programas arquitectónicos, y la configuración del proyecto, que además se refiere también a la construcción; el cual identifica la estructura, la materialidad, las técnicas y los sistemas construidos adoptados por el arquitecto y que originan que dicha obra sea considerada como moderna o no.
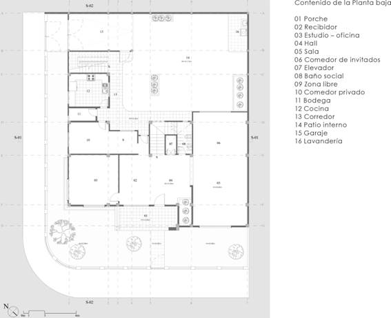
Tomando en cuenta esto, el presente análisis se refiere a la residencia Valdivieso, diseñada y construida en 1960 por el arquitecto ecuatoriano Marcelo Rodríguez Palacios; siento esta, la primera construcción de la época moderna diseñada en la ciudad de Loja. Es así, que el siguiente análisis tiene las siguientes pautas: 1.- El proyecto y su vinculación con el lugar; 2.-Configuración del edificio: donde se describe cada espacio del proyecto, incluyendo un criterio de forma que parte de una reflexión visual o juicio estético. Esta reflexión, identifica los criterios organizadores de la edificación como resultado de la agrupación de elementos con un valor de coherencia; 3.- Componentes Básicos del proyecto: Donde se da énfasis a diferentes elementos como accesos, circulación, sistema portante y materialidad; y 4.-Composición formal del edificio: En este punto se analiza la forma del edificio, su volumetría y el sistema estructural adoptado por el arquitecto y que es generadora de la forma.
Emplazamiento, solar y programa
La residencia del Ingeniero Alejo Valdivieso Carrión (Figura 10), se encuentra ubicada en Suramérica, al sur de Ecuador, en el cantón y provincia de Loja, con coordenadas UTMWGS84 17S 699402.19 m E y 9557736.20 m S. Este proyecto se emplaza en la Zona de primer orden; esta zona se caracteriza porque se concentran todas las edificaciones alrededor del núcleo inicial de la fundación de la ciudad. En lo que respecta al entorno del proyecto, se evidencia varios estilos arquitectónicos en su alrededor, los cuales respetan la línea de fábrica de la época; es decir, todas las construcciones alrededor del proyecto, comienzan desarrollándose sin retiro frontal, posterior, ni lateral; y en muchos casos, con portales semipúblicos. Por lo que este proyecto, representa la primera construcción residencial con los criterios de retiros implementados en el Plan de Gatto Sobral de 1960. Es decir, el proyecto es el único hasta esa época, que se lo diseñó con retiro frontal y lateral, creando así unos patios de transición entre la calzada y el proyecto, tal cual como se lo planteó en el Plan de Sobral (Figura 11yFigura 12).
El Solar es rectangular y se encuentra ubicado espacialmente entre las Calles Miguel Riofrio y 18 de Noviembre, siendo esta última, una de las arterias viales más importantes de la ciudad; ya que cuenta con un alto flujo vehicular y peatonal; además, comunica rápidamente el Norte con el Sur. Este solar se encuentra ubicado de tal manera que recepta los rayos directos de la mañana sobre zonas como la sala o estudio y progresivamente por su ubicación recepta también radiación indirecta en la fachada Sur en zonas como las habitaciones.
El programa busca implementar actividades nuevas para la época, es un programa mucho más racionalista, en donde las actividades internas se desarrollan con un criterio de orden y de coherencia. Por ejemplo, se implementa el baño social como un espacio de vivienda; y esta, cerca de la sala y a un gran comedor; además al ser el dueño una de las personas más importantes de la ciudad en aquella época, también se implementó un cuarto estudio; así también, se genera un patio interno y además balcones que involucran el proyecto con el entorno.
Configuración del proyecto
El arquitecto Rodríguez separa claramente la parte social, a la que destina un gran porcentaje de la planta baja, siendo esta de gran importancia, tomando en cuenta a quien iba destinado el proyecto, por lo que se destinó zonas de estancia para la masiva visita que iba a registrar el propietario. Es por esta razón, que se implementa para la época, el cuarto de oficina - estudio que además, está conectado con un recibidor y por otro lado una gran sala de reuniones y un gran comedor para invitados (Figura 13).
En esta planta baja se destina como innovación, una zona para el vehículo; además, de generar un gran patio privado que ya no es como un espacio en el que se desarrollan las otras actividades, como se lo venía desarrollando en los proyectos de la época colonial y republicana, sino que resulta como un espacio privado para el esparcimiento del individuo.
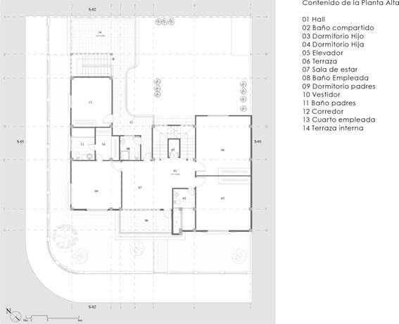
En lo que respecta a la planta alta 1 (Figura 14), el arquitecto zonifica dos terrazas, por una parte una terraza semi publica que involucra el proyecto con el exterior y por otro lado una terraza más privada que comunica el proyecto con el patio interno y también con el exterior; además, implementa el dormitorio master que está comunicado con un baño privado y con un vestidor, implementando en la ciudad este criterio espacial de zonas privadas; por otro lado, destina una zona aislada al proyecto, como un dormitorio para la empleada que está comunicado con un acceso secundario. Así también, diseña una sala de estar familiar, que la ilumina mediante los elementos de cobogó y que está conectada con la terraza principal. Finalmente, diseña un baño compartido, pero que lo ilumina y ventila mediante una ventana superior que sobre sale en la cubierta.
Componentes básicos del Proyecto
Acceso
El acceso principal está ubicado por la calle 18 de Noviembre; siendo esta, la de mayor flujo peatonal de la zona; por lo que el proyecto se desarrolla en torno a este acceso. Para esto, Rodríguez diseña un corredor de 1.20 m de ancho que conecta la calzada con un gran porche de estancia de acceso a la vivienda (Figura 15).
El acceso secundario es independiente al proyecto, y es ubicado por la calle Miguel Riofrio; es destinado al acceso del vehículo y también al acceso del personal de aseo de la vivienda (Figura 15).
Circulación
La circulación horizontal en la planta baja se la visualiza ordenada, coherente, por un lado tiene una vinculación por parte del acceso principal con el cuarto de estudio y el vestíbulo, siendo este último, el espacio de vinculación de las demás zonas. En este punto tiene acceso directo a la sala y al comedor de invitados; también, se puede dirigir directamente hacia la planta alta mediante la circulación vertical (Figura 15).
Finalmente, se ve un criterio racional por parte del arquitecto en diseñar la zona de cocina directamente vinculada con una zona de almacenamiento y el comedor familiar; además, lo vincula con el accedo del vehículo.
En lo que respecta a la circulación vertical, Rodríguez diseña unas gradas en tipo U que contiene en el centro un elevador; este elemento lo diseña como el espacio de transición entre planta baja y planta alta 1; por otro lado, diseña cerca al espacio de vehículo otra circulación vertical, esto para comunicar directamente la zona del vehículo con la zona privada de la planta alta 1.
En la planta alta 1 se mantiene la coherencia y orden en la circulación, por un lado se destina el acceso secundario para la circulación del personal de aseo y también un recorrido directo desde la zona del vehículo en la planta baja hasta la zona privada del proyecto, sin tener que acceder por la zona social (Figura 16).
Sistema Portante
En lo que concierne a la distribución de la estructura se puede concluir que el arquitecto Rodríguez distribuyó de una manera ordenada, precisa y eficaz los pilares; para esto diseña columnas de 0.30 x 0.30cm y un pilar de 0.60 x 0.30cm; el cual ayuda a sostener las cargas de la terraza principal. En lo que respecta a la modulación utiliza una distancia entre las caras internas de las columnas de 3.50m entre los ejes 1 al 6; y destina una modulación de 5.0 m para el eje 6 a 7. En este proyecto Rodríguez dispone de 7 ejes transversales y 7 ejes longitudinales.
Finalmente el arquitecto dispone de unos pilares circulares de hormigón inclinados de 0.15 cm cada uno; que se encuentran conectados mediantes unas cadenas de borde con la viga de 0.30 x 0.60 m, esto diseñado para que puedan sostener el volado destinado para la terraza principal.
Materialidad
Este proyecto es una de las primeras obras que Rodríguez construye con hormigón armado, como un sistema de construcción nuevo e innovador en la ciudad; además utiliza la piedra pizarra traída desde Cariamanga para ubicarla en el cerramiento y en la fachada sur del proyecto (Figura 17); este es un recurso que el arquitecto comienza a implementar en casi todas sus obras en la ciudad a partir de 1960. También dispone de ventanas de vidrio y marcos de hierro; en los pisos ubica un tipo de baldosa rectangular y mantiene la mampostería de ladrillo panelón con revestimiento y enlucido externo e interno. Otro recurso que utiliza el arquitecto es la utilización de marcos de hierro en el cerramiento creando así una permeabilidad visual desde lo público hasta el proyecto (Figura 18).
Otro de los elementos muy utilizados por el arquitecto Rodríguez sobre este proyecto, es la utilización del cobogó; que es un elemento hueco de hormigón que ayuda a ingresar la ventilación e iluminación, pero separando el interior del exterior; es decir dando privacidad a la zona pero sin perjuicio de la luz natural y la ventilación; este recurso se originó en el norte de Brasil y es un recurso de la época moderna muy utilizado, y que el arquitecto Rodríguez lo implementó en la ciudad.
Configuración formal del proyecto
En lo que respecta al estudio formal, se puede concluir que el proyecto tiene 5 volúmenes claramente identificados; el primero es el volumen que contiene gran parte del programa, por otro lado el volumen vertical que sustrae el volumen principal; y que es destinado a la caja de gradas y elevador. El tercer volumen, es el que contiene el porche del proyecto, realizando una adición al volumen principal. El cuarto volumen, es el plano vertical que contiene el baño compartido y que también tiene una composición de adición; es el elemento de mayor jerarquización del proyecto y está ubicado en el ingreso de la construcción. El quinto volumen, es la caja de gradas secundarias que tiene una diferente altura de todo el proyecto y que se adiciona al volumen principal (Figura 19).
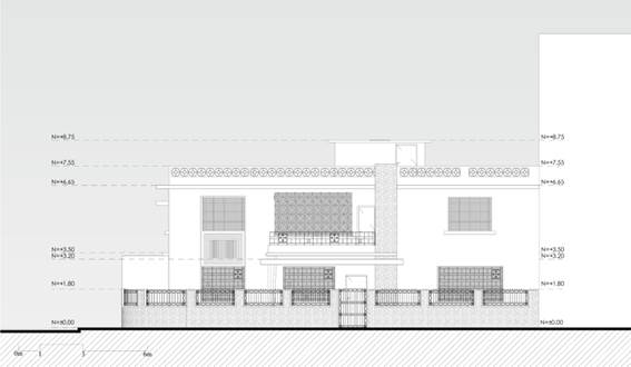
En este proyecto Rodríguez utiliza la estructura de hormigón que la define de pórticos, este criterio le permite ordenar los espacios internos pero también le permite que esta estructura sea la generadora de la forma. Este proyecto es el primer en contar con una cubierta plana de hormigón en la ciudad de Loja, por lo que se puede visualizar su simplicidad en la forma, procurando Rodríguez implementar planos horizontales, planos verticales y ángulos rectos en sus esquinas; por otro lado, al ubicar una columna que sostenga mediante una viga de borde la terraza principal, Rodríguez lo vincula funcionalmente con un pozo de luz, generando un volumen vertical jerarquizador que llega a romper los planos horizontales de la fachada este (principal) (Figura 20yFigura 21).
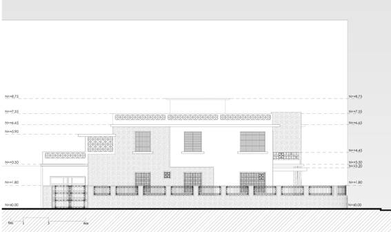
En la fachada sur (secundaria) se puede ver la disposición y la importancia de generar cubiertas planas en diferentes niveles, lo que provoca la formación de diferentes volúmenes, esto ayuda a la composición de la forma del proyecto. Esta disposición de alturas la dispone tomando en consideración las diferentes funciones que se desarrollan internamente, por un lado está el gran volumen que contiene las actividades de la casa, en otro nivel inferior diseña una pequeña losa que contiene las gradas secundarias, y en otro nivel la terraza secundaria, lo que da a entender el criterio de Rodríguez de utilizar la estructura entre estas las columnas o losas para ir generando los volúmenes del proyecto (Figura 22).
Conclusiones
En cuanto al entorno, se puede deducir la decisión del arquitecto de vincular el proyecto con su contexto inmediato, que incluye la vía y los colindantes (pequeña escala), en esta obra Rodríguez adopta por primera vez los retiros frontales y laterales en un proyecto en la ciudad; siendo este, el primer proyecto residencial diseñado y construido con estas nuevas normativas, lo que conllevó a que el arquitecto diseñara unos patios propios de la vivienda, y que los ubica como una forma de transición entre lo público y lo privado. Es tan importante para Rodríguez vincular este proyecto con su entorno, que decide ubicar un cerramiento de muro pero con elementos metálicos, que permite que exista el vínculo entre el proyecto y el peatón mediante la permeabilidad visual (Figura 23).
En cuanto al programa arquitectónico, se puede concluir en que el arquitecto Rodríguez, fue quien introdujo nuevas característica funcionales, a los programas arquitectónicos de viviendas residenciales en la ciudad; ya que hasta esa fecha, los únicos programas de viviendas conocidos, eran los que se realizaban en la época colonial y republicana; por lo que Rodríguez aprovecha las normativas del nuevo Plan Regulador diseñado por Sobral, para realizar la primera vivienda con características de retiros y de patios de transición; además de esto, el programa de vivienda que vincula por primera vez en la ciudad, es racionalista, puesto que busca conectar ambientes entre sí y más no zonas aisladas como se lo venía realizando hasta esa época.
En cuanto a la construcción, la utilización del hormigón armado como nuevo sistema constructivo en la ciudad, es fundamental en las obras de Marcelo Rodríguez; para esto, él mismo preparó a la mano de obra local, que carecían de conocimiento alguno en la construcción de estos nuevos sistemas constructivo. Luego de prepararlos, comenzó a construir todas sus obras a base de hormigón armado; además, aprovechó las propiedades plásticas del hormigón, lo que le permitió establecer e imponer cubiertas de hormigón de todo tipo, tanto planas, inclinadas o tipo bóvedas. Gracias a la utilización del nuevo sistema constructivo, Rodríguez, puede realizar modulaciones en su estructura, lo que le permite obtener plantas diáfanas y ordenadas en su interior.
Otro de los materiales innovadores que implementa Rodríguez, es la piedra tipo pizarra natural; la cual la consigue en unas canteras de Cariamanga (ciudad de la provincia de Loja), que luego las corta en piezas y posterior las ubica en los zócalos, o en ciertos lugares de las fachadas de todas sus obras; este material es un elemento que Rodríguez lo utiliza repetidamente en casi todas sus obra a partir de los años 60.
Además de este material, Rodríguez utiliza en gran proporción el vidrio para los vanos; el hierro para los pasamanos; la madera en puertas; la cerámica en pisos y además utiliza un elemento tipo hueco llamado cobogó, que es un elemento implementado en la arquitectura brasileña, pero que Rodríguez decide implementarlo en cada una de sus obras en la ciudad de Loja; además, este elementos así como la piedra pizarra, son materiales que posteriormente fueron utilizados por otros arquitectos en la ciudad, por lo que la influencia de Rodríguez también se vio reflejada en la materialidad de sus obras.





































