El proyecto franciscano para Bolivia
El primer franciscano que llega al Alto Perú en 1532 es fray Marcos de Niza (De Mendoza, 1976, p.10) que, según el reverendísimo arzobispo de Mantua, era “religioso de fervorosísimo celo de la salud de las almas y en quien resplandecía y se hermanaban a una la virtud y la doctrina, era natural de la ciudad de Niza, varón docto, religioso observante” (Córdova Salinas, 1997, p.79). Relata el cronista Diego de Córdova y Salinas:
Y luego vinieron del Oriente al Occidente doce frailes franciscanos, pobres, desnudos, de la Provincia de España, sacerdotes y legos desde Puerto Viejo y Paita, donde desembarcaron y corrieron por la tierra a pie, predicando a Cristo Crucificado hasta la ciudad del Cuzco. Iban como varones preclarísimos resplandeciendo en religión y santidad (…) y de tal manera abonaron la tierra con su espíritu y pobreza que los comenzaron a llamar los Doce Apóstoles de San Francisco, dando después aqueste título y renombre a esta Provincia. Finalmente estos religiosos humildes, pocos y muertos al mundo acabaron grandes cosas, ganando innumerables almas a Dios aunque con gran sudor y trabajo (Ibid, p.139).
El primer franciscano que llega a la actual Bolivia fue el padre Francisco de Aroca que se establece en una modesta casa en el año 1539. Al siguiente año se solicitan refuerzos para fundar los conventos de Potosí (1547), La Paz (1549), Cochabamba (1580 y Mizque (1600). En 1600 el padre Francisco Morales pedía realizar la fundación de Santa Ana de Chuquisaca, para lograr la inauguración de Nuestra Señora de Guadalupe de Ururu y, seis años más tarde, San Francisco de Tarija. Este crecimiento vertiginoso de la Orden en tierras bolivianas llevará a la creación de la Provincia de San Antonio de Los Charcas en 1565, que tendrá una serie de vaivenes hasta erigirse definitivamente en el Capítulo general de Lima de 1637 (Valcanover, 2001, p.14).
Con el tiempo, la actividad misional en Charcas necesitó un replanteamiento y a ese propósito sirvió el establecimiento de la Congregación de Propaganda Fide, con Colegios con personal dedicado a la predicación entre los infieles y pueblos cristianos. Estos Colegios quedaron organizados como conventos autónomos, entre sí y respecto de la Provincia en que se encontraban radicados, gobernados a su vez por un guardián y su discretorio o consejo, y dependiendo inmediatamente del Ministro general de la Orden o de sus delegados.
Durante la época colonial en Charcas, se fundaron tres Colegios de Propaganda Fide. El primero es el Colegio de Nuestra Señora de Los Ángeles de Tarija, que se estableció el 14 de octubre de 1755 con religiosos provenientes de Ocopa, Perú. El segundo colegio es el de Nuestra Señora del Mayor Dolor de Moquegua, que actualmente se encuentra en Perú. Este colegio tuvo el objetivo de revitalizar la vida religiosa en Arequipa y llevar a cabo misiones entre los infieles de los Yungas, La Paz y Cusco. El tercer colegio es el de San José de Tarata en Cochabamba, fundado por iniciativa del Obispo de Santa Cruz, Alejandro José Ochoa y Mordillo. La comunidad llegó en 1796 y construyó el convento entre 1798 y 1802. Su principal actividad pastoral se desarrolló en el Valle Alto, la ciudad de Cochabamba y especialmente en la parte sur del departamento. Este colegio llevó a cabo misiones entre los yuracarés, mosetenes, guarayos y sirionós (Valcanover, 2001, p.20).
Estos tres colegios desempeñaron un papel fundamental en la evangelización y propagación de la fe durante la colonia en Charcas. En relación a Guarayos el primer misionero en llegar a este lugar fue el padre Gregorio Salvatierra, quien en 1822 solicitó ayuda misionera al Colegio Apostólico de Tarata, la cual le fue concedida. De esa manera el 3 de mayo llegan los padres Francisco Lacueva, Gregorio Quintana, Mariano Rocamora y el Hermano Blas. En el manuscrito existente en el AFC fechado en 1875 se relata que “Llegaron a la Reducción que se llama Santa Cruz de Guarayos precisamente el 3 de mayo, y fue una gran fiesta para el buen sacerdote, y los Yndios tomaron parte” (Cardús, 2010, p.22). De esta manera comienza la historia misional de este pueblo no exenta de dificultades y desafíos a lo largo del tiempo.
Misiones y templos en la etapa fundacional: Ascensión de Guarayos, Yaguarú, Urubichá y Yotaú.
La historia de la misión de Ascensión de Guarayos (1826) comienza, cuando Gregorio Salvatierra, luego de muchas vicisitudes para evangelizar a los guarayos, “llega a un pequeño caserío formado por tres o cuatro familias en un punto inmediato a la actual Misión de Ascensión, y sin pasar adelante se quedó entre ellos formando un pequeño rancho con el nombre de San Joaquín (…), esto sucedía en 1811” (Cardús, 2010, p. 74). Esta misión siguió formándose hasta 1850, en cuyo tiempo fue entregada a los padres de Tarata. Dicho pueblo, cuando los padres se hicieron cargo de él, estaba en completa ruina, con motivo de un incendio que poco antes había acabado con todo, excepto la iglesia y un pequeño galpón (Cardus, 2010, p. 118). Actualmente la misión de Ascensión es la capital de la provincia Guaraya, es la más poblada y desarrollada, situada sobre una loma a unos 306 km al norte de Santa Cruz (15° 53’ 47” Sur, 63° 11’ 18” Oeste) (Jordán, 2006, p. 295-366).
Según el padre Cardús “tiempo hace que el P. Hermenegildo, conversor de dicha Misión, deseaba hacer levantar una nueva y correspondiente (iglesia) á las necesidades actuales, pero hasta ahora no le ha sido posible; sólo ha podido reunir algunos materiales al efecto” (Cardús, 2010, p. 120) (Esto por 1891). Es el padre Jenaro Scherer de Itter el que emprende la construcción de una iglesia nueva de 65 m. de largo, 20 m. de ancho y 15 m. de alto. La antigua iglesia era muy estrecha y no muy moderna, pues fue techada con hojas de palma (p.13, 2 parr.), con “indecibles fatigas pudo llevar la obra hasta poder bendecirla el 10 Diciembre de 1895. El Padre mismo fue director de la obra y trepaba a las paredes y escaleras y andamios con regla, escuadra, etc.” Fue bendecida por el P. Ambrosio Pratti, la construcción duró 6 años.
En relación a Yaguarú (1841) según Cadús, se encuentra al norte y a 8 leguas de Ascensión, así como al poniente y a tres leguas de Urubichá (Cardús, 2010, p. 125), aunque el lugar donde se ubica inicialmente la misión no es muy saludable y está plagado de mosquitos, su ubicación es verdaderamente pintoresca. Está situada en las orillas de una laguna que tiene aproximadamente una legua de largo y menos de media legua de ancho (Cardús, 2010, p.125). En el año 1841 llega a este sitio el padre Manuel Viudez, quien se se percató inmediatamente de las razones por las cuales no prosperaba esta misión y decide trasladarla a unos 40 km al este, a la ribera de un lago pintoresco: llamando a esta misión Yaguarú.
En el año 1872 se construye la iglesia actual, obra del padre Ambrosio Pratti, esta iglesia es bendecida en el año 1900. La iglesia está dedicada a la Exaltación de la Santa Cruz y es de tres naves. El 1 de junio de 1917 el padre Vicente Capolongo contrata a Francisco Gallardo para que construya el campanario y modifique la iglesia (Pesciotti, 2008, p. 626). En lugar del pórtico de madera se construye un nuevo pórtico monumental de ladrillos con arcos de herradura o árabes, rematado con una pequeña torre octogonal con cúpula. El campanario que estaba exento, sufre un derrumbamiento en 1954, consecuencia de esto es que se acorta el templo (Bosl,1997, p.18).
La misión de Urubichá (1862) está al noroeste de Ascensión, situada a izquierda del Río Blanco presenta un terreno fértil y es puerto natural, lo que permite que se comunique con Yaguarú. Dice Cardús “Dicha Misión es la misma que al principio se llamaba Trinidad y que estaba situada sobre la orilla del río San Miguel: es la misma que, abandonando los trabajos hechos en 1844, se trasladó unas doce leguas hacia el naciente de donde estaba, con el nombre de Trinidad de Ubaimini, en cuyo lugar permaneció algunos años, durante los que la Misión presentaba un muy bien aspecto, y se habían hecho ya tanto y tan útiles trabajos que pasaba por la mejor de las Misiones: es la misa que en 1862, habiéndose hecho malsano el lugar, abandonando todos los adelantos anteriores se trasladó tres leguas más al norte, sobre la misma orilla del río Blanco” (Cardús, 2010, p.123 - 124). Lamentablemente sólo permaneció dos años en ese sitio y se trasladó nuevamente por la existencia de “hormigas bravas” muy dañinas cambiando el nombre a Nuestra Señora de los Ángeles de Urubichá (Cardús, 2010, p. 124).
La iglesia nueva, al igual que la casa del padre, está construida con adobes y tejas. La iglesia nueva tiene una longitud de sesenta y dos varas y un ancho de veinte varas, y consta de tres naves (Cardús, 2010, p. 124). Este edificio fue construido en 1916, pero lamentablemente fue demolido en 1981 y reemplazado por otro (Bosl, 1997, p.20).
San Francisco de Yotaú (1873) es la primera que se encuentra en el camino desde Santa Cruz, se funda en 1858, en un punto llamado San Fermín a 8 leguas al sur del lugar que ocupa (Cardús, 2010, p. 115), esta Misión progresó en ese sitio, hasta que por motivos de pestes y enfermedades los padres consideraron conveniente cambiarla de lugar. El cambio fue lento, debido a que muchos de sus habitantes se encontraban fuera del pueblo gran parte del tiempo, debido a la necesidad de conducir ganado a Moxos y a Chiquitos. Estaba situada sobre una pequeña loma de mediano declive ya poca distancia, unos pequeños y vistosos cerros que se elevan sobre unas medianas lomas perpetuamente verdes (Cardús, 2010, p.116 - 117). La iglesia, es una de las más lindas de las erigidas en Guarayos. La construcción se concluyó en 1917 (Bosl, 1997, p.22).
El templo “guarayo”
El templo desempeña un papel central en las misiones, siendo el elemento más importante dentro de la estructura urbana de la comunidad. Su relevancia se debe a que la misión tiene como objetivo principal la evangelización, y el templo es el corazón vital de este propósito. Por su tamaño y prominencia, el templo se convierte en una presencia monumental que domina el paisaje, y su diseño arquitectónico lo convierte en el elemento articulador de todo el conjunto que lo rodea.
Además, el templo se alza como el escenario y punto de referencia donde se desarrolla la vida del pueblo, tejiendo su identidad y actividades cotidianas. Y aunque la arquitectura del templo puede ser sencilla, se destaca por su grandeza en términos de dimensiones y diseño, lo que le confiere una apariencia majestuosa.
Por lo general, el templo forma parte de un conjunto religioso que se organiza de acuerdo a una trama funcional y espacial ortogonal y se encuentra ubicado al lado de las habitaciones de los padres funcionando como remate de la plaza.
Explorando la estructura espacial en la arquitectura “guaraya”
Las iglesias en cuanto a dimensiones tienen diferentes tamaños. Aproximadamente, la longitud de las iglesias es de 54 metros de largo, con un ancho de 20 metros y una altura de 13 metros (TAF 1895, p. 2-3 parr. 2-1). Según las fuentes mencionadas, la iglesia de Yaguarú es la más pequeña (Mendoza, 2021, p. 31), mientras que la de Urubichá es la más grande (Bosl, 1982, p. 244), y la de Yotaú se encuentra en un punto intermedio.
Para calcular el tamaño necesario de un templo para acomodar a un número determinado de feligreses, se recomienda un promedio de 1 metro cuadrados por persona en la nave principal. Basándonos en este cálculo, podemos estimar que se necesitarían aproximadamente 1080 metros cuadrados para albergar entre 500 y 1000 personas en cada templo. Esto significa que los templos tienen la capacidad de acomodar a una gran parte de los habitantes de los pueblos de manera cómoda. Por ejemplo, en el caso específico de Urubichá, que tenía alrededor de 1000 habitantes en el momento de su fundación (Bosl, 1997, p. 56), el templo tendría la capacidad de albergar a la mayoría de la población local.
Al ser el templo el centro espiritual y refugio, se lo proyecta a escala urbana, teniendo en cuenta, muchas veces el total de la población al que pertenece. Este exceso de tamaño tiene un propósito simbólico, ya que marca la capacidad de recibir a multitudes. Además, urbanísticamente y considerando también las características climáticas de la zona de Guarayos, se estima que el inicio de las actividades religiosas se realizaría en la plaza, dándose de esta manera una prolongación del templo hacia el espacio urbano.
En cuanto a la forma de apropiación del espacio interior al estar dividido en tres naves, la nave central y las dos naves laterales, se presupone que se daría una división de acuerdo a sexos y edades, según era costumbre dividir a la población durante la evangelización en América.
Tipología
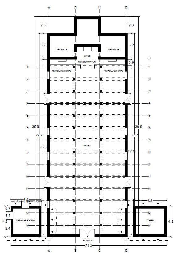
Los templos en las misiones de Guarayos comparten una estructura espacial similar, pero cada uno tiene sus particularidades. El templo de Ascensión de Guarayos exteriormente, forma parte de un conjunto religioso que se organiza de acuerdo a una trama funcional y espacial ortogonal. Se encuentra ubicado al lado de las habitaciones de los padres y funciona como remate de la plaza. El campanario está adosado al templo. Consta de una nave central principal y dos naves laterales, separadas por 14 horcones o columnas de madera que sostienen la cubierta, según fuentes: “La iglesia tiene tres naves. Los 14 horcones o columnas son de madera durable y arriba la mayor parte añadidos por no alcanzar. Si no están bien finos y no muy derechos es porque no se pudo labrar para no debilitarlos y se resolvió más tarde vestirlos con ladrillos” (TAF 1895, p.13 parr. 4).
En la Misión de Yaguarú, exteriormente, el templo está ubicado de manera escenográfica, en consonancia con una nota característica de la espiritualidad franciscana: el amor a la naturaleza. La llegada al lugar desde la avenida principal ofrece una vista imponente, culminando con la arquitectura religiosa en estudio. El templo también está compuesto por tres naves: una nave central principal y dos naves laterales, pero en este caso están separadas por 16 horcones o columnas de madera que soportan la cubierta. El templo de la Misión de Urubichá sigue la misma ubicación urbana y estructura espacial, con una nave central principal y dos naves laterales sostenidas por columnas de madera mara. El templo de la Misión de Yotaú, aunque comparte características similares con los templos anteriores, como su ubicación frente a la plaza, la estructura de tres naves y las columnas de madera que sostienen la cubierta. Fue uno de los primeros en ser intervenido y ha experimentado cambios en su apariencia a lo largo del tiempo.
En definitiva, la tipología arquitectónica que describe la estructura de los templos en las misiones de Guarayos es conocida como "templos de tres naves tipo sala". Esta tipología se refiere a la organización espacial del templo, con una nave central principal y dos naves laterales. Cada una de estas naves puede tener características distintas en cuanto al número de horcones, columnas de soporte y detalles arquitectónicos, lo que le otorga a cada templo su propia singularidad. La sacristía y contrasacristía se ubican contra el presbiterio, que toma forma de una capilla profunda. La presencia o ausencia de campanarios también es un elemento a considerar: algunos templos, como Ascensión y Yaguarú, cuentan con campanario independiente, mientras que otros, como Urubichá, Yotaú y San Pablo, no lo poseen.
Características interiores
El interior de los templos se caracteriza principalmente por la presencia de retablos, mobiliario litúrgico y pinturas en las paredes, en algunos casos.
El templo de Ascensión de Guarayos, según fuentes, consta de (…) 3 altares: el mayor dedicado a NSJC (nos falta una estatua o lienzo que represente su Ascensión); él de la derecha a la Virgen Sma., el 3ro a Santa Rosa de Lima, con sus correspondientes estatuas y otros cuadros, con candeleros de metal extranjeros, y con bonitas flores artísticamente elaboradas por la inexperta mano de un neófito. Tiene dos coros, ambos situados sobre la puerta mayor, el más elevado y de menor proporción es exclusivamente para la orquesta. Tanto el presbiterio y los altares, como el cuerpo de la Iglesia y su fachada, todo está condecorado con bonitas pinturas. Sobre la puerta, en el frontis, léase lo siguiente con medianos caracteres:
Dno - ntro - Jesu - Xto - in - coel - ascen. - templum - hoc - a - R. P. Hermenegildo - Gianotti - hujus - Reduct. - iam - Conver - e - fundamentis - erectum - ac - dein - a - P-. Januarui - Scherer - comp.- Neophitorum - tantum - viribus - freti - Sacra - Lauretana - recurrente - die - dedicatum - fuit - MDCCCLXXXXV.” (TAF 1895, p. 2-3 parr. 2-1). En definitiva tenemos un templo con tres retablos: el retablo principal y dos laterales. El altar mayor consta de dos cuerpos, siendo en el superior donde se encuentra la estatua del Sagrado Corazón. En el altar izquierdo se ubica la estatua de Santa Rosa de Lima, Patrona de Sudamérica, mientras que en el lado derecho se encuentra la figura del Patriarca San José. Además, se puede observar un púlpito que está fijado en uno de los horcones y se accede a él mediante una escalera de madera. El presbiterio está separado de la nave principal por un barandado y en toda la nave se puede apreciar la presencia del Vía Crucis.
En el interior del templo, se pueden apreciar tres retablos: el retablo principal y dos retablos laterales. El retablo principal antiguo consta de un cuerpo y una calle, mientras que los retablos laterales están incrustados en hornacinas. El presbiterio se encuentra separado de la nave principal por dos gradas y a lo largo de toda la nave se pueden observar las estaciones del Vía Crucis (Mendoza, 2022, p.33) y en Urubichá en el interior destaca el retablo principal, que data de alrededor de 1930 y se caracteriza por su estilo neogótico. El presbiterio se encuentra separado de la nave principal por dos gradas y a lo largo de toda la nave se pueden observar las estaciones del Vía Crucis. El artesonado de madera, los arcos de medio punto y el altar neogótico contribuyen a crear un espacio único y diferente en comparación con los templos previamente descritos. Estos elementos arquitectónicos añaden un toque especial y resaltan la belleza y singularidad de este templo.
El padre Pesciotti cambia totalmente el aspecto del templo con el apoyo de la comunidad. En Crónica Guaraya de 1918 se hace constancia de que “Nuestro P. Guardián” escribía por el mes de Octubre sobre la construcción de una iglesia en Yotaú:
“La iglesia está terminada en la parte exterior; es decir está techada. El frontis y la torre sobre la puerta mayor, y que forma atrio (la torre), todo concluido. En la semana entrante se comenzará con el altar mayor. Tiene 2 sacristías, 2 altares laterales, 2 capillas”. (Pesciotti, 2008, p. 557).
En definitiva, las iglesias de Guarayos presentan pocos elementos en su interior, entre los que destacan los retablos y altares, simples, pero en algunos casos con gran valor constructivo, como el retablo de lateral de la iglesia de Ascensión que fue diseñado según un retablo de Viena y ejecutado con maderas del lugar, mostrando la alta calidad de los trabajos artesanales en la misión. (Bosl, 1997, p.224)
Materiales de construcción: un fenómeno de “coloración regional o local”
Los templos analizados muestran una clara adaptación a los materiales y técnicas constructivas locales. Por ejemplo, el templo de Ascensión está construido con adobe y tiene un techo de par y nudillo cubierto de tejas. En su interior, las paredes están revestidas de yeso y presentan motivos pintados en el presbiterio que se extienden a lo largo de las naves. Por otro lado, en Yaguarú, el templo está completamente hecho de adobe, con un techo de par y nudillo y cubierto con tejas. En el interior, tanto las paredes como las columnas están revestidas de yeso. En Urubichá los materiales son similares a los de los templos anteriores. En Yotaú escribe Pesciotti, “Cimientos de piedra, de todo el edificio, 1 metro sobre el nivel del piso; anchura de los cimientos, 1 metro también. Las pilastras que sostienen la torre son de piedra y cal, hasta el arranque de los arcos; lo demás cal y ladrillo (…) Las paredes de la iglesia son de adobes vestidas de ladrillos en la parte exterior, con techo volante; nada de corredores ni palos. El frontis es de piedra, ladrillos y cal. (Pesciotti, 2008, p. 557)
En definitiva, se observa, en todos los casos, una evidente adaptación a los recursos del lugar, dando lugar a lo que Vicente García Ros llama fenómeno de “coloración regional o local” (García Ros, p.124). Es decir, en la arquitectura franciscana se da la mimetización de la práctica constructiva de los frailes con la praxis constructiva del lugar enriquecida y potenciada con la capacidad del rápido aprendizaje y habilidad manual del indígena. Esto es lo que contribuyó decididamente a la generación de productos arquitectónicos de identidad propiamente americana, tales como los casos estudiados en esta investigación.
Para identificar los valores que hacen únicos a estos cuatro templos franciscanos y destacar su aporte significativo, se elaboró una matriz que evidencia cómo los templos de Guarayos constituyen un testimonio perdurable de la capacidad de la espiritualidad franciscana para transformar y, a su vez, ser transformada por las realidades locales.
A continuación, el cuadro comparativo de los templos:
| Característica | Ascensión de Guarayos | Yaguarú | Urubichá | Yotaú |
| Aspecto Histórico | Fundada en 1826 por el padre Gregorio Salvatierra. Originalmente, sufrió un incendio que devastó la misión, excepto la iglesia. En 1850, se entregó a los padres de Tarata para su reconstrucción y desarrollo. | Fundada en 1841 por el padre Manuel Viudez. Inicialmente, la misión se ubicó en un lugar insalubre lleno de mosquitos. Fue reubicada a un entorno más saludable en 1841, lo que favoreció su desarrollo. | Fundada en 1862, originalmente conocida como Trinidad. Se trasladó varias veces debido a enfermedades y condiciones insalubres. La misión fue un centro importante para la evangelización en la región. | Fundada en 1858 en San Fermín, se trasladó debido a epidemias. Se considera una de las misiones más importantes, con un crecimiento significativo en su población y actividades. |
| Tipología y Espacialidad | Templo de tres naves, con 14 horcones de madera que sostienen una cubierta de par y nudillo. Ubicado junto a las habitaciones de los padres, se articula con la plaza central, sirviendo como centro de actividades comunitarias. | Templo de tres naves, con 16 horcones que sostienen la cubierta. Situado en un entorno pintoresco junto a una laguna, lo que realza su conexión con la naturaleza y la espiritualidad. | Templo de tres naves, con columnas de madera que soportan la estructura. Ubicado a la orilla del río Blanco, el entorno fértil contribuyó a la actividad agrícola y la vida comunitaria. | Templo de tres naves, ubicado frente a la plaza, que se integra al paisaje circundante. Su construcción en una loma le confiere una presencia destacada en el entorno. |
| Características Interiores | Interior con tres retablos: el mayor dedicado a NSJC, otro a la Virgen, y uno más a Santa Rosa de Lima. Decoración con pinturas en las paredes, un Vía Crucis a lo largo de la nave, y dos coros situados sobre la entrada, facilitando la música durante las ceremonias. | Altar dedicado a la Exaltación de la Santa Cruz, con un retablo central que destaca en la liturgia. Elementos decorativos sencillos, pero significativos, con una comunidad activa que participa en la celebración de la misa. | Interior con un retablo principal de estilo neogótico, con un presbiterio separado por gradas. Presenta un Vía Crucis y otros elementos decorativos que reflejan la época. Se destaca por su uso en ceremonias y festividades locales. | Interior con dos altares laterales y un altar mayor. El presbiterio toma forma de capilla profunda, adaptándose a las prácticas litúrgicas. La iglesia ha experimentado cambios a lo largo del tiempo, reflejando la evolución de la comunidad. |
| Materialidad | Construido en adobe y ladrillos, con techado de par y nudillo cubierto de tejas. Las paredes están revestidas de yeso, y se utilizan elementos decorativos de madera en el interior. La estructura es robusta, adaptándose a las condiciones locales. | Construido completamente de adobe, con techado de par y nudillo similar al de Ascensión. Columnas y horcones revestidos de yeso, manteniendo la estética regional y funcional. La sencillez de los materiales refleja la espiritualidad franciscana. | Construido en adobe con techado de tejas, similar a otros templos. La casa del padre se hizo con materiales locales. La calidad de los materiales refleja la necesidad de adaptarse al entorno y a las condiciones climáticas. | Estructura de adobe con cimientos de piedra. La parte exterior está revestida de ladrillos, mientras que el interior utiliza elementos de madera. Este enfoque en la materialidad resalta la conexión con el entorno natural y cultural. |
Este cuadro sintetiza las características distintivas de los templos, resaltando su capacidad para adaptarse al contexto local y mantener una coherencia con la espiritualidad franciscana. En conjunto, no solo son monumentos arquitectónicos, sino también expresiones vivas de la espiritualidad franciscana, que se adapta y florece en diálogo constante con su entorno. Representan un modelo de arquitectura misional que, aunque modesto, trasciende su función religiosa para convertirse en un símbolo de identidad y pertenencia comunitaria. En este sentido, los templos de Guarayos son un testimonio duradero de la capacidad de la espiritualidad franciscana para transformar y ser transformada por las realidades locales.
Discusión
Según Matas, al considerar los rasgos de la espiritualidad franciscana y su relación con el urbanismo y la arquitectura, se pueden identificar los siguientes aspectos:
“- El amor a la pobreza y a los pobres, que exteriormente busca la austeridad y la ausencia del lujo, pero que no escatima recursos en darle lo mejor a Dios en todo lo relacionado al culto divino. - El amor a la naturaleza y el respeto a toda la creación como vehículo de relación con Dios, como dice el Papa Francisco: “(…) san Francisco, fiel a la Escritura, nos propone reconocer la naturaleza, como un espléndido libro en el cual Dios nos habla y nos refleja algo de su hermosura y de su bondad” - La predicación práctica y sencilla, por la tendencia de la Orden a las aplicaciones prácticas de la vida interior, la espiritualidad afectiva y el gusto por las devociones populares (…). Todo esto dentro del marco de la itinerancia y de una espiritualidad flexible que sabe adaptarse a las necesidades de cada lugar y momento” (Matas,2016, p.19).
El amor a la pobreza y a los pobres se manifiesta en la esencia misma de estas misiones, ya que surgieron con el propósito de servir a los indígenas de la región. Además, se puede observar este amor a través de los materiales utilizados en la construcción de los templos, los cuales siempre son los propios de la zona, demostrando una simplicidad y humildad en su elección.
El amor a la naturaleza se manifiesta en la ubicación escenográfica de estas misiones, siendo la mejor ubicada la Misión de Yaguarú, la cual presenta una localización especialmente hermosa. Esta conexión con la naturaleza es característica de la espiritualidad franciscana, que busca apreciar y proteger la creación divina.
Por último, la predicación sencilla adaptada a las necesidades del lugar se refleja en la arquitectura de todas las edificaciones descritas y analizadas. Estos templos no buscan ser imponentes ni grandiosos, sino que se caracterizan por su modestia y simplicidad, lo cual permite una cercanía y accesibilidad para la comunidad.
De manera general, el modelo analizado refleja varios aspectos fundamentales de la espiritualidad franciscana, tales como el amor por la pobreza y los pobres, el aprecio por la naturaleza y la predicación sencilla. No obstante, también suscita cuestionamientos acerca de la conciliación de estos ideales con las dinámicas de predominio y control presentes en este contexto, dejando este tema para futuras investigaciones, ya que no es el enfoque de la presente investigación.
Conclusiones
La arquitectura misional de Guarayos, desarrollada por la orden franciscana, no solo refleja las características propias de la evangelización en América, sino que también encarna un profundo proceso de inculturación cultural y adaptación al contexto local. Los templos, situados estratégicamente frente a las plazas principales como centros articuladores de la vida comunitaria, fueron concebidos bajo una tipología sencilla y funcional, característica de la arquitectura franciscana. Esta tipología incluye una nave amplia tipo sala, generalmente dividida en tres por columnas de madera locales, con sacristías y contrasacristías que completan el conjunto. A esto se suma la diversidad estilística en los campanarios, como se observa en los templos de Ascensión y Yaguarú, frente a la ausencia de estos en Urubichá y Yotaú, lo que evidencia una flexibilidad y una atención a las necesidades específicas de cada comunidad.
Un aspecto central de esta arquitectura es el fenómeno de "coloración regional o local", definido por Vicente García Ros, que se manifiesta en la incorporación de materiales y técnicas constructivas locales, como el uso de adobe, ladrillo y techos de par y nudillo. Esta capacidad de adaptación no solo responde a una lógica práctica, sino que también refleja un diálogo cultural profundo. Los franciscanos supieron integrar las habilidades y conocimientos indígenas, potenciando las técnicas locales con elementos traídos de Europa, como los retablos y la organización espacial del templo. Esta interacción generó no solo estructuras arquitectónicas funcionales, sino también espacios simbólicos donde las comunidades podían expresar y apropiarse de una fe cristiana adaptada a su realidad.
El sincretismo entre las tradiciones indígenas y los valores franciscanos se hace evidente no solo en los elementos constructivos, sino también en el uso del espacio. Las iglesias, además de ser lugares de culto, funcionaban como puntos de cohesión social, organizando la vida de las comunidades en torno a la plaza central. Este diseño urbano no era fortuito; respondía a un ideal franciscano de la “ciudad de Dios” y la “ciudad de los hombres”, donde lo espiritual y lo cotidiano se entrelazaban. El programa arquitectónico, aunque simple, tenía una carga simbólica significativa, utilizando materiales y formas locales que transmitían un mensaje de modestia, accesibilidad y respeto por la naturaleza.
Los templos reflejan las notas de pobreza franciscana mediante el uso de materiales sencillos, la simplificación del programa arquitectónico y la sobriedad decorativa, mostrando al mismo tiempo un respeto implícito por la naturaleza a través de la armonización con el espacio exterior. Además, la ornamentación interior de los templos, aunque modesta, incluía elementos de gran valor simbólico y cultural. Retablos, esculturas y pinturas se integraban al espacio con un propósito pedagógico, facilitando la comprensión y apropiación de los valores cristianos por parte de las comunidades indígenas.
El concepto de inculturación es fundamental en este análisis, ya que destaca cómo la espiritualidad franciscana fue transformada y enriquecida al interactuar con las culturas locales. Lejos de imponer un modelo uniforme, los franciscanos adaptaron sus prácticas a las particularidades de cada región, permitiendo la creación de un espacio compartido donde las comunidades indígenas pudieran apropiarse del mensaje religioso. Este enfoque no solo respetaba las sensibilidades culturales locales, sino que también fomentaba un sentido de pertenencia y continuidad cultural.
En conclusión, la arquitectura de Guarayos trasciende las simplificaciones académicas y estilísticas que la han categorizado erróneamente como una expresión secundaria dentro del panorama arquitectónico de América Latina. Más allá de su modestia, representa un ejemplo sobresaliente de diálogo cultural, inculturación y sincretismo, que no solo adaptó el mensaje cristiano a las realidades locales, sino que también permitió que estas comunidades se enriquecieran y transformaran la espiritualidad franciscana. Este legado arquitectónico es una muestra tangible del impacto de la evangelización franciscana y su capacidad para integrar lo popular y lo monumental, lo local y lo universal, dejando una huella profunda en la identidad cultural de Guarayos y en la historia de Bolivia.
























