Introducción
El Positano fue el último edificio que los Arqs. Luis García Pardo y Adolfo Sommer Smith proyectaron en colaboración. Su ingeniosa solución estructural, estrechamente integrada al programa arquitectónico, se enmarca en una incipiente línea de desarrollo de nuevos modelos de organización de la materia que alcanzará su apogeo en las siguientes décadas. Sin embargo, su sistema estructural no ha sido aún suficientemente estudiado. Analizar su relevancia, su estado actual de conservación y las vulnerabilidades que sufre, es primordial para planificar tareas que permitan prolongar su vida útil.
A través de una revisión bibliográfica completa, se verificó la relevancia de la obra. Se recopilaron sus planos de albañilería, estructura e instalaciones, así como memorias técnicas y constructivas, informes y fotografías de época. La fuente de esta información es el Archivo del Centro de Documentación e Información del Instituto de Historia de la Facultad de Arquitectura, Diseño y Urbanismo de la Universidad de la República.
Por otra parte, se realizó un modelo de cálculo estructural a efectos de comprender su comportamiento tridimensional, de analizar sus deformaciones, tensiones y fisuraciones teóricas.
Se inspeccionó el edificio atendiendo al estado de conservación de sus componentes de modo de estimar, preliminarmente, su estado de conservación.
Se establecieron correlaciones entre las decisiones de proyecto, los riesgos asumidos en el diseño estructural, los materiales y las tecnologías utilizadas, y el estado actual de conservación, valorando el diseño estructural de la obra.
Finalmente, se establecen lineamientos metodológicos para la realización de un análisis integral a partir del cual planificar la preservación del Positano, que podría también aplicarse a otras obras modernas en Uruguay.
La relevancia del edificio
Desde su concepción, el proyecto del Positano fue ampliamente difundido en el medio local. En agosto de 1959 fueron publicados diversos artículos de periódico promocionando el inicio de las obras de un edificio de 10 pisos (AAVV. 1959a y 1959b), al tiempo que ante el Consejo Departamental de Montevideo se gestionaba la aprobación de una excepción para llegar a los 12 pisos que, finalmente, no sería aprobada. Se destacaban, especialmente, la original solución estructural, la solución de fachada vidriada y la integración de la arquitectura con las artes plásticas. En una entrevista publicada en 1965, García Pardo profundizaba en estos aspectos, señalando que la estructura del edificio formaba parte de su organización espacial y plástica, respondiendo a aspectos funcionales a la vez que era exhibida (Martínez et al. 1965, 31).
En su análisis sobre el desarrollo de la arquitectura moderna, Leopoldo Artucio afirmaba que los primeros intentos de desarrollo de una interpretación local del estilo internacional ocurren en Montevideo a mediados del siglo XX y destacaba, particularmente, las cualidades estéticas del edificio Positano, asociadas a una geometría simple y a una fachada libre vidriada (Artucio 1971, 42-43).
Más recientemente, una serie de publicaciones en revistas locales (Gaeta 1996) (Gaeta 2000) (Piñón 2000) y regionales (Sbarra 2001), así como investigaciones y tesis de posgrado (Cestau 2009) (Medero 2012) (López de Haro 2016), analizaron la obra de García Pardo desde una perspectiva contemporánea, pero con un perfil fundamentalmente proyectual. Esta bibliografía hace hincapié en la idea de que García Pardo y Sommer adaptaron los principios modernos de diseño, establecidos en la obra de los maestros europeos, a su modo de concebir la arquitectura, a las particularidades de su entorno y a las condicionantes específicas de cada proyecto que desarrollaron juntos. Sus obras se entienden como diseños fuertemente adaptados a los lugares de implantación, pero proyectados con criterios compositivos modernos y universales. Aún cuando el Positano tiene características de prototipo, dice Helio Piñón, no se trata de una obra que pueda emplazarse en cualquier lugar, “aún cuando posee valores inequívocos de universalidad, está concebida para su sitio, en ello estriba su grandeza” (Piñón 2000, 28).
Existe, igualmente, una investigación reciente que se ha centrado específicamente en el proceso de diseño del Positano (Tuja 2016). Si bien este trabajo focaliza en las estrategias de diseño e implantación urbanística desarrolladas por sus autores, también recopila las ideas estructurales que acompañaron a este proceso.
Cabe destacar, por último, que los edificios El Pilar y Positano fueron declarados como Bienes de Interés Municipal en 2005 (Junta Departamental de Montevideo, 2005). Posteriormente, en 2015, ambos fueron seleccionados para integrar la exposición “Latin America in Construction: Architecture 1955-1980” en el Museo de Arte Moderno de Nueva York, señalándose que la calidad de su contribución al paisaje urbano de la ciudad de Montevideo los había convertido en excepcionales expresiones del Estilo internacional local (Bergdoll et al. 2015, 270-271).
El proceso de diseño
El Positano tuvo un dilatado proceso de proyecto que se extendió durante toda una década. Durante este período, fueron elaborados tres proyectos arquitectónicos. Este proceso ha sido analizado y detallado por algunos autores (Tuja 2016) (López de Haro 2016) a partir de los planos y documentos que integran el Archivo Arq. Luis García Pardo en el Centro de Documentación e Información del Instituto de Historia.
El primer proyecto, desarrollado entre 1949 y 1950, consiste en 11 planos de albañilería firmados por García Pardo. En el primer plano de esta serie, que incluye la planta de ubicación y de mensura, se especifica su doble carácter de técnico y propietario.
El segundo proyecto data de 1952 y consiste en 6 láminas firmadas por García Pardo, que tampoco incluyen planos de estructura.
El tercer y último proyecto, firmado por los arquitectos Luis García Pardo y Adolfo Sommer Smith, se desarrolló entre 1957 y 1959 e incluye dos proyectos de estructura (López de Haro 2016, 208).
Los primeros planos de albañilería están fechados en abril de 1957 y los del primer proyecto de estructura, con la autoría de Dieste y Montañez Ings. y la colaboración de Carlos Agorio, datan de 1958.
El diseño de la estructura finalmente construida puede verse esbozado en un plano firmado en 1959 por los arquitectos proyectistas (ver figura 1), en tanto que los planos detallados correspondientes al cálculo ajustado de este diseño, con fecha de noviembre de 1959, están firmados por la empresa Mondino y Viera Ltda.
Las obras se iniciaron a finales de 1959 (ver figura 2) y el edificio fue inaugurado en 1963.
El proyecto de estructura
El proyecto definitivo consiste en un bloque de apartamentos de 24,8 m de largo, 12 m de ancho y 10 niveles de altura, orientado según el eje norte-sur y dispuesto perpendicularmente a la calle Charrúa. Dos apartamentos simétricos, de 140 m2, se disponen en cada planta (ver figura 3). La idea de que cada cliente pudiera personalizar su vivienda de acuerdo a sus requerimientos particulares está en la base del partido arquitectónico, pero no tuvo éxito. García Pardo decía: “cada cliente podría componer su vivienda según sus gustos y necesidades. Lamentablemente la mentalidad del público no estaba hecha para eso y desde el punto de vista comercial no caminó” (Gaeta 2000, 8). Finalmente, el diseño de una única planta tipo, con cuatro dormitorios, logró el éxito comercial buscado (Gaeta 2000, 9).
La planta baja es totalmente libre y abierta al espacio exterior, únicamente interrumpida por la presencia de dos núcleos verticales y dos pilares con forma de doble T, que marcan el acceso al bloque (ver figura 4). La vivienda del servicio de portería, de planta triangular, resuelve el encuentro del proyecto con la medianera al este. El subsuelo, por último, está completamente destinado a garaje.
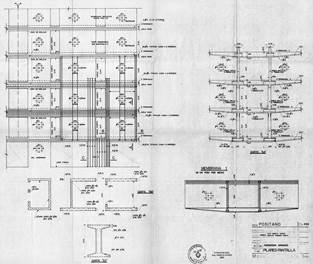
En el proyecto de estructura diseñado por Dieste y Montañez existían dos núcleos centrales que alojaban las circulaciones verticales y recorrían toda la altura del bloque (ver figura 5). Seis pantallas, cuatro en la dirección longitudinal y dos en la transversal, conformaban las fachadas laterales y completaban el sistema portante primario. Existían, además, otras dos pantallas divisorias entre apartamentos, en cada piso.
Las losas nervadas, de 16 cm de espesor, descargaban sobre los núcleos centrales y sobre vigas de 12,15 m de longitud ubicadas sobre las fachadas principales. Estas vigas, de 15x110 cm de sección, eran invertidas y conformaban los antepechos de las aberturas.
Una losa de altura variable, en el nivel del techo de la planta baja, resolvía la transición de la estructura superior hacia dos pantallas inferiores de anchos variables entre 30 y 100 cm. Estas últimas, dispuestas en dirección transversal al bloque y ocupando casi todo su ancho, eran junto a los dos núcleos centrales los únicos elementos presentes en la planta baja.
Este proyecto fue finalmente abandonado y se encargó a Mondino y Viera Ltda. un proyecto alternativo, que sería el que finalmente se construiría (ver figuras 6 y 7).
La estructura principal del proyecto definitivo consiste en una serie de pantallas y núcleos verticales alineados, simétricos con respecto al eje transversal.
Dos núcleos rectangulares, análogos a los del primer proyecto, recorren toda la altura del edificio. Uno de ellos aloja la escalera principal y el otro, dos ascensores. Se forman a partir del enlace de pantallas cuyo espesor cambia en los distintos niveles. En los tramos correspondientes al subsuelo, planta baja y los primeros tres pisos, sus espesores son de 20 cm. En los pisos 4 a 6, el espesor se reduce a 15 cm y en los pisos 7 a 10, así como en la azotea y en los tanques de agua, es de solo 12 cm.
Los dos núcleos de los extremos adoptan una forma de doble T en los niveles de subsuelo y planta baja. El alma de dicha sección es de 75 cm de espesor y las alas, de 2,40 m de longitud, tienen espesores que varían entre 25 y 45 cm. En los diez niveles superiores, estos núcleos resuelven los voladizos de 2,60 m del bloque en la dirección longitudinal y se subdividen en cuatro, dos con forma de doble T y dos con forma de C. Sus alas se ubican en el mismo plano vertical que las de los tramos inferiores, pero desfasadas. Las almas, por su parte, se perforan con puertas y resultan en planos diferentes.
Los dos núcleos superiores con forma de doble T alojan en su interior los servicios higiénicos de las viviendas y los dos con forma de U, pequeñas habitaciones que dan hacia las fachadas laterales.
Una serie de vigas rigidiza las alas de todos los núcleos en la dirección longitudinal. La altura de las mismas es de 83 cm en los niveles 2 y 3, y de 55 cm en los otros niveles. El ancho llega a los 125 cm en los niveles 1, 2 y 3, a partir de donde se reduce a 75 cm. Resultan particularmente solicitadas aquellas que se ubican a nivel del techo de la planta baja, ya que allí ocurre una transferencia crítica de esfuerzos provocada por el cambio en la configuración geométrica de los núcleos de los extremos. De haberse mantenido continuos en toda la altura del edificio, se habría evitado sobre exigir a estas vigas y, probablemente, evitar la presencia de dos ductos de chapa de acero en la planta baja, que alojan los desagües de la instalación sanitaria de los servicios higiénicos (ver figura 8).

Figura 6: Planta tipo del proyecto de estructura de Mondino y Viera Ltda, fechado el 13 de noviembre de 1959.

Figura 7: Secciones y detalles del proyecto de estructura de Mondino y Viera Ltda, fechado el 13 de noviembre de 1959.
Sobre estas vigas longitudinales, descargan vigas de tres tramos que mensulan 4,65 m hacia la fachada oeste y 4,15 m hacia la fachada este, resolviendo los voladizos del bloque en la dirección transversal. Aquellas ubicadas sobre las fachadas laterales, tienen alturas variables entre 15 y 55 cm, con anchos constantes de 20 cm. Las intermedias tienen alturas variables entre 12 y 52 cm, con anchos también variables entre 10 y 20 cm. Las separaciones de estas alineaciones de vigas oscilan entre los 60 y los 210 cm y los tramos centrales de ocho de ellas coinciden con las almas de los núcleos.
Una serie de vigas continuas de 10 cm de ancho y 15 cm de altura, finalmente, arriostran los extremos de las ménsulas en las fachadas longitudinales, liberándolas por completo de obstrucciones.
A nivel de la cubierta, la altura de todas estas vigas se incrementa para conformar los pretiles de la azotea.
Sobre las vigas de tres tramos, siguiendo las pendientes de las caras inferiores, descargan losas de 7 cm de espesor. Losetas horizontales de hormigón prefabricado, por otra parte, descargan sobra las caras superiores de estas vigas.
Dos membranas de hormigón armado formadas por muros de doble hoja con cámara de aire, componen los muros divisorios entre las unidades de cada piso, un piso por medio. Cada hoja de estas membranas tiene 12 cm de espesor. Próximo a sus extremos se elimina la cámara de aire y la membrana se afina, alcanzando un espesor total de 12 cm en los bordes sobre las fachadas principales. Estas membranas cumplen la función de arriostrar verticalmente los planos horizontales mensulados.
Cuatro alineaciones de vigas de 50 cm de ancho y 60 cm de altura, por último, rigidizan horizontalmente a los cuatro núcleos a la altura de la cubierta del subsuelo. Estas vigas se acartelan en los apoyos sobre pilares de sección circular de 50 cm de diámetro, en el interior del subsuelo.
Esta compleja geometría (ver figura 9) fue diseñada para optimizar dos factores: el comportamiento mecánico de la estructura y la coordinación con las ideas proyectuales. La forma de las distintas piezas es deducida a partir de las solicitaciones a que resultan sometidas y del proyecto de un bloque con una planta de cierta flexibilidad programática. De este modo, los núcleos y pantallas, sometidos a importantes esfuerzos de compresión y de flexión debido a las cargas gravitatorias y de viento, se diseñan con secciones tubulares o de perfiles de ala ancha. Las secciones cambian con la altura para adaptarse a la variación de las solicitaciones y alojan, en su interior, espacios de servicio. Las vigas transversales también tienen secciones variables para adaptarse a la variación de los esfuerzos de flexión.
El conjunto resuelve el diseño de un bloque elevado que parece flotar (ver figura 10). Las sombras arrojadas sobre los componentes verticales provocan su desaparición visual en la planta baja, creando la ilusión de que el volumen superior levita sobre el jardín.
Existen dos diferencias fundamentales entre los dos proyectos de estructura desarrollados. Una es la altura de las vigas longitudinales en las fachadas principales, que en el proyecto de Mondino y Viera se reduce al mínimo. En consecuencia, se libera por completo la fachada y los paños vidriados se extienden de piso a techo, sin obstrucciones, de modo de explorar nuevas relaciones entre el espacio doméstico y el exterior. La otra es la geometría de los núcleos y las pantallas en la planta baja, que en el proyecto final obstruyen en menor medida la fluidez del espacio y se repliegan al centro del bloque, donde la sombra es más profunda.

Figura 9: Esquemas del proyecto de estructura construida. A- Núcleos y pantallas. B- Ménsulas, vigas y membranas de rigidización. C- Estructura completa.
Conservación y mantenimiento
En visitas realizadas en 2022 se pudo acceder a la planta baja, a las circulaciones verticales en el interior de los núcleos, al interior de dos apartamentos, al subsuelo y al apartamento del servicio de portería. Pudo constatarse que el estado de conservación de la estructura en las zonas visitadas era bueno, sin lesiones de gravedad visibles.
Se observaron algunas fisuras, manchas de humedad y descascaramientos de pintura y revoque en algunas zonas exteriores del paramento inferior de la losa del primer nivel, en el sector norte (ver figura 8).
Se observó, igualmente, la ausencia de algunas piezas del revestimiento de mármol de las ménsulas de hormigón armado y de las vigas de las fachadas sur y este.
El estado de conservación de la estructura en el interior de los dos apartamentos visitados era muy bueno. No se observaron lesiones.
Uno de los apartamentos conservaba su distribución original. El otro había sido recientemente reformado; se habían eliminado varios tabiques aprovechando la flexibilidad de la planta libre. Los revoques de revestimiento de las pantallas y el núcleo habían sido removidos dejando a la vista el hormigón armado estructural (ver figura 11). Pudo observarse un hormigón con problemas de segregación de áridos en la zona inferior, presencia de diversas oquedades y algunos sectores de armadura a la vista, con escaso o nulo recubrimiento.
En los paramentos inferiores de las losas sobre el subsuelo se detectaron varias manchas de humedad, probablemente producidas por filtraciones de agua proveniente del jardín o de las cañerías de desagüe suspendidas (ver figura 12). También se observaron varias fisuras, descascaramientos y manchas negruzcas y de color óxido en dichos paramentos. Diversas fisuras y manchas de humedad fueron igualmente observadas en los muros de contención perimetrales.
El apartamento de portería se encontraba en obras. Se habían demolido algunos de sus tabiques interiores. Algunas manchas de humedad y descascaramientos de pintura estaban siendo reparados.
Modelo de cálculo
A efectos de analizar el funcionamiento de la estructura y de obtener una aproximación teórica a sus deformaciones, tensiones, cuantías y fisuraciones, se realizó un modelo de cálculo con el programa RFEM 5, utilizando criterios de los Eurocódigos. Los casos de carga considerados fueron: peso propio, cargas muertas, sobrecarga de uso y viento. Se aplicó un hormigón de calidad C20, con una resistencia característica a la compresión de 20 N/mm2.
En Estado Límite de Servicio, para la combinación característica de resultados, ocurren las deformaciones verticales iniciales máximas del modelo en los extremos de las vigas mensuladas, sobre la fachada oeste, alcanzando los 12,7 mm. La deformación horizontal máxima del modelo es de 30,9 mm, es decir, aproximadamente 1/895 de su altura (ver figura 13). Estos valores se encuentran dentro de los límites recomendados por la normativa (Asociación Española de Normalización 2016, 140) (Código Técnico de la Edificación 2019, SE-13).
La armadura longitudinal máxima necesaria en los núcleos verticales, para las combinaciones pésimas de carga, alcanza los 17,0 cm2/m. En las vigas que conectan los núcleos en la dirección longitudinal llega a los 46,2 cm2, en tanto que en las caras superiores de las ménsulas de los entrepisos es de 10,1 cm2 (ver figura 14). Estos valores son inferiores a las cuantías de acero especificadas en los planos.
Las mayores fisuras teóricas del modelo ocurren en las vigas que conectan los núcleos en la dirección longitudinal, alcanzando los 0,41 mm. Este valor supera en un 36% las máximas aberturas de fisura recomendadas por el Eurocódigo 2 (Asociación Española de Normalización 2016, 132).
Las máximas aberturas de fisura en las ménsulas de los entrepisos alcanzan los 0,34 mm (ver figura 15), superando en un 13% los valores máximos recomendados. En las vigas que rigidizan los núcleos a nivel de la cubierta del subsuelo llegan a 0,30 mm y en los núcleos verticales alcanzan los 0,22 mm, cumpliendo con las recomendaciones de la normativa.

Figura 13: Deformaciones globales (mm) en las direcciones z e y, en Estado Límite de Servicio para la combinación característica de resultados.
La relevancia del diseño estructural
La estructura del Positano fue diseñada como una obra de arte, como un hecho escultórico que se exhibe a la ciudad sobre una plataforma abierta y rodeado de otras obras de arte: un jardín cuyo diseño original se ha perdido, un mural y una escultura de grandes dimensiones. La materia prima con la que se diseña esta obra es el sistema vidriado de las fachadas principales, los cerramientos de aluminio de las fachadas laterales, el hormigón armado de los núcleos y los tanques de agua, y el revestimiento de mármol de las vigas. La tecnología es el principal componente de su imagen.
Su esquema organizativo emerge a partir de las nuevas ideas sobre la flexibilidad del espacio moderno. Los núcleos estructurales aseguran la rigidez del edificio a la vez que alojan, en sus huecos, espacios de servicio tales como circulaciones verticales, baños, lavaderos y depósitos. En torno a ellos, por otra parte, se organizan los espacios servidos de las salas de estar y dormitorios, liberados de cualquier interferencia estructural y separados por tabiques que pueden fácilmente modificarse.
Esta idea de separación entre espacios sirvientes y servidos había sido recientemente desarrollada, a partir de la observación de la organización espacial y estructural de algunos monumentos clásicos de la arquitectura, por el Arq. Louis Khan (Sabini, 1994: 42), quien la estaba aplicando en el diseño de edificios como la Casa de Baños para el Trenton Jewish Community Center (1954-1959), los Laboratorios de Biotecnología Richards de la Universidad de Pensilvania (1957-1965) o el Salk Institute en La Jolla (1959-1966). También puede observarse en algunas obras más antiguas, tales como la Martin House (1903-1905) u otras “casas de la pradera” de Frank Lloyd Wright.
El Positano se enmarca en una incipiente línea que anticipó modelos de organización estructural de edificios esbeltos que fueron desarrollados algunos años más tarde.
A finales de la década de 1950, cuando el diseño de las estructuras modernas se basaba aún en retículas homogéneas de losas, vigas y pilares, el Positano fue concebido a partir de una estrategia diferente. La rigidez del sistema estructural, fuertemente condicionado por la acción del viento, deriva de la geometría de una serie de pantallas enlazadas, cuidadosamente estudiadas para adaptarse a las ideas proyectuales.
Frank Lloyd Wright había proyectado en 1929 un edificio cuya estructura se basaba en este principio, la St. Mark´s Tower de Nueva York (Medero 2014, 81), finalmente no construida. Cuatro núcleos hexagonales centrales, que alojaban las circulaciones verticales, servían de soporte a cuatro pantallas mensuladas sobre las que se apoyaban los entramados horizontales de los 18 niveles superiores. La Torre Illinois, un proyecto utópico de 1956 para una rascacielos de una milla de altura, por otra parte, preveía un núcleo central de pantallas en forma de trípode a partir del cual mensulaban las losas que sustentaban sus 528 niveles. La enorme inercia geométrica de este núcleo, de acero y hormigón armado, era la principal responsable de su gran rigidez mecánica. Entre 1952 y 1956, finalmente, Wright diseñó y construyó con estos principios la torre para la H. C. Price Company en Oklahoma, con cuatro núcleos formados a partir del enlace de pantallas de hormigón armado, dispuestos en forma de cruz (ver figura 16).
Esta línea de diseño llevó, en las décadas siguientes, al desarrollo de nuevas tipologías estructurales que revolucionaron la construcción en altura.
En las Torres Blancas de Madrid (1964-1968) de Francisco Sáenz de Oiza, un intrincado sistema de pantallas enlazadas cuya geometría combina segmentos de recta, círculos y rectángulos, fue diseñado para asegurar la rigidez estática del edificio y definir, a la vez, las tipologías de vivienda (ver figura 17). Resultan, de este modo, núcleos interiores, exteriores e intermedios.
Para la torre Burj Khalifa de Dubai (2004-2010), diseñada por Adrian Smith y George Efstathiou de S.O.M., fue desarrollado un sistema compuesto por un núcleo central hexagonal del que se prolongan tres alas con pantallas en forma de doble T, que aloja tanto las circulaciones verticales como las horizontales. La gran rigidez de esta estructura permitió alcanzar una altura récord, que aún no ha sido superada. Esta solución fue replicada por los mismos autores en la Jeddah Tower de Arabia Saudita, actualmente en construcción.
La idea de enlazar pantallas de hormigón armado con geometrías optimizadas estructuralmente, fue también aplicada para la construcción de volúmenes bajos pero sometidos a importantes esfuerzos de flexión. Tal es el caso de las vigas con sección doble T y almas perforadas que soportan el volumen horizontal que sobrevuela el Museo Brasileño de Escultura de San Pablo (1986-1995) de Paulo Mendes da Rocha (ver figura 18).

Figura 17: Planta tipo de la estructura de las Torres Blancas de Madrid, de Francisco Sáenz de Oiza.
Riesgos y vulnerabilidades
Si bien el estado general del edificio es bueno, se observaron problemas de mantenimiento en componentes de alto compromiso estructural ubicados en el sótano, tales como las vigas que estabilizan lateralmente la estructura. Las manchas de humedad y de color óxido presentes en esta zona, podrían estar delatando procesos incipientes de corrosión.
La estructura está protegida por recubrimientos (revoques, piezas de mármol y pinturas) que enlentecen el proceso natural de carbonatación. El hormigón de los núcleos, en el interior de las viviendas, está revocado y no fue elaborado con los cuidados necesarios para quedar expuesto. Sin embargo, en uno de los apartamentos visitados el revoque había sido removido y pudo constatarse que el hormigón presenta defectos. Es previsible que el proceso de carbonatación se acelere en estas piezas y que los tramos de armadura que están ahora a la vista, sufran antes de lo esperado procesos de corrosión al quedar despasivadas. Una pérdida de acero en estos elementos, aunque localizada, podría provocar un incremento en las deformaciones horizontales del edificio.
La pérdida de algunas piezas del recubrimiento de mármol en vigas podría, igualmente, acelerar el proceso de carbonatación del hormigón atentando contra su durabilidad.
Conclusiones
El diseño estructural del Positano fue revolucionario para su época. La configuración de sus componentes sigue una estricta lógica basada en la función resistente y aprovecha la capacidad del hormigón armado de adoptar cualquier forma que pueda ser moldeada con un encofrado. El conjunto, resulta indisociado de la expresión estética del edificio, basada en el alarde de hacer levitar un volumen de diez niveles de altura.
Su audaz concepción se enmarcó en una incipiente línea de proyectos que anunciaron un nuevo modelo de organización de la materia en sistemas altamente exigidos a la flexión, ya sea por salvar grandes luces o por tratarse de estructuras esbeltas sometidas a la acción del viento.
Su arriesgado diseño, por otra parte, incluye elementos con un alto compromiso estructural que es indispensable preservar, teniendo en cuenta los fenómenos de envejecimiento que habitualmente sufre el hormigón armado, de modo de garantizar la integridad física del conjunto.
A efectos de definir procedimientos de monitoreo, mantenimiento y reparación estructural de bienes con interés patrimonial como el Positano, es necesario contextualizar la relevancia histórica de las obras, analizar sus características tecnológicas y los procesos técnicos que permitieron su materialización, modelizar y entender sus comportamientos estructurales, registrar detalladamente las lesiones que los afectan y realizar ensayos (preferentemente no destructivos) para determinar las características físicas, químicas y mecánicas de sus materiales y evaluar el riesgo de ocurrencia de fenómenos degresivos. Análisis integrales de este tipo permitirían realizar diagnósticos en base a los cuales definir acciones que permitan prolongar sus vidas útiles.



























