SciELO - Scientific Electronic Library Online

 
vol.13 número2Arquitectura y modernidad: del agua a la tierra. Las primeras sedes de clubes de remo en UruguayEstado del arte para la apreciación del valor cultural y económico de inmuebles habitacionales de mediados del siglo XX en México índice de autoresíndice de materiabúsqueda de artículos
Home Pagelista alfabética de revistas  

Servicios Personalizados

Revista

Articulo

Links relacionados

Compartir


Anales de Investigación en Arquitectura

versión impresa ISSN 2301-1505versión On-line ISSN 2301-1513

An. Investig. Arquit. vol.13 no.2 Montevideo dic. 2023  Epub 01-Dic-2023

https://doi.org/10.18861/ania.2023.13.2.3539 

Artículos

Dirigismo y autoconstrucción. El programa ATEPAM y los debates durante la presidencia de Hilario Zalba en el Instituto de la Vivienda de la provincia de Buenos Aires, Argentina (1958-1962)

Dirigisme and Self-construction. The ATEPAM program and the debates during the presidency of Hilario Zalba at the Housing Institute of the province of Buenos Aires, Argentina (1958-1962)

Dirigismo e autoconstrução. O programa ATEPAM e os debates durante a presidência de Hilario Zalba no Instituto de Habitação da província de Buenos Aires, Argentina (1958-1962)

1Universidad de Buenos Aires. Argentina. luclongon@gmail.com

2Facultad de Arquitectura, Diseño y Urbanismo, Universidad de la República. Uruguay. alejandrogregoric@gmail.com

3Universidad Nacional de Avellaneda. Argentina. c.s.labra@gmail.com

4Universidad Nacional de Avellaneda. Universidad Nacional de La Plata. Argentina. mcarranza73@hotmail.com


Resumen

Con la finalización de la segunda guerra mundial se propagó en Latinoamérica la lógica de la planificación territorial, estimulada desde Estados Unidos a través de centros y entidades hemisféricas que difundieron programas de asistencia técnica. A este fenómeno se sumó la crisis de los llamados “modelos nacionales”, acompañada por un vertiginoso crecimiento demográfico y el desarrollo de las conurbaciones producto de las migraciones campo-ciudad, que pusieron de relieve el creciente problema de la vivienda. El déficit habitacional desbordó las soluciones habitacionales del tipo “llave en mano”, característicos de los decenios precedentes, y en ese contexto, el modelo de autoconstrucción se propuso como solución alternativa.

En el marco de los debates continentales alrededor del problema de la vivienda masiva a fines de la década de 1950, el artículo brinda una aproximación a los programas sobre autoconstrucción y asistencia técnica introducidos en el recientemente creado Instituto de la Vivienda de la Provincia de Buenos Aires (IVBA), presidido por Hilario Zalba a partir de 1958. El flamante organismo se insertó en la discusión disciplinar contemporánea llevando adelante políticas que significarían un desplazamiento del rol “dirigista” del Estado argentino hacia los procesos participativos y “descentralizados”, el fomento de la iniciativa privada y la industrialización de la construcción.

Palabras clave: Autoconstrucción; dirigismo; planificación; ATEPAM; Hilario Zalba; Alianza para el Progreso; industrialización; Estado; participación; vivienda; Instituto de Vivienda de la Provincia de Buenos Aires; Argentina

Summary

With the end of the Second World War, the logic of territorial planning spread in Latin America, stimulated from the United States through hemispheric centers and entities that disseminated technical assistance programs. Added to this phenomenon, was the crisis of the so-called “national models”, accompanied by rapid population growth and the development of conurbations as a result of rural-urban migration, which highlighted the growing housing problem. The housing deficit exceeded the "key on hand" housing solutions, characteristic of previous decades, and in this context, the self-build model was proposed as an alternative solution.

Within the framework of the continental debates around the problem of mass housing at the end of the 1950s, the article provides an approach to the programs on self-construction and technical assistance introduced in the recently created Housing Institute of the Province of Buenos Aires (IVBA), chaired by Hilario Zalba since 1958. The entity was inserted into the contemporary disciplinary debate carrying out policies that would mean a displacement of the "director" role of the argentine State, towards participatory and "decentralized" processes, the promotion of private initiative and the industrialization of construction.

Keywords: Self-construction; management; planning; ATEPAM; Hilario Zalba; Alliance for Progress; industrialization; State; participation; housing; Province of Buenos Aires Housing Institute; Argentina

Resumo

Com o fim da Segunda Guerra Mundial, a lógica do planejamento territorial difundiu-se na América Latina, estimulada a partir dos Estados Unidos por meio de centros e entidades hemisféricas que divulgavam programas de assistência técnica. A este fenómeno somou-se a crise dos chamados “modelos nacionais”, acompanhada pelo rápido crescimento demográfico e pelo desenvolvimento das conurbações resultantes da migração rural-urbana, que evidenciaram o crescente problema habitacional. O défice habitacional ultrapassou as soluções habitacionais “chave na mão”, características das décadas anteriores, e neste contexto, o modelo de autoconstrução foi proposto como solução alternativa.

No marco dos debates continentais em torno do problema da habitação coletiva no final da década de 1950, o artigo fornece uma abordagem para os programas de autoconstrução e assistência técnica introduzidos no recém-criado Instituto de Habitação da Província de Buenos Aires (IVBA), presidido por Hilario Zalba desde 1958. O novíssimo corpo inseriu-se no debate disciplinar contemporâneo realizando políticas que significariam um deslocamento do papel “diretor” do Estado para processos participativos e “descentralizados”, a promoção da iniciativa privada e a industrialização da construção.

Palavras chave: Autoconstrução; liderança; planejamento; ATEPAM; Hilario Zalba; Aliança para o Progresso; industrialização; Estado; participação; moradia; Instituto de Habitação da Província de Buenos Aires; Argentina

La asistencia técnica. Una estrategia política para América Latina

En la segunda posguerra, se inició en Latinoamérica un periodo caracterizado por la institucionalización del pensamiento desarrollista, en donde predominó la noción de “planificación” como lógica de intervención en las escalas del territorio, la ciudad y la vivienda. Tras el cuestionamiento hacia los “modelos nacionales”, la hegemonía estadounidense en el continente se materializó mediante la creación de distintas entidades interamericanas, en donde el planning se naturalizó como la herramienta de diagnóstico y diseño de propuestas en el espacio físico, articulada con estudios sobre los fenómenos sociales. La creación de la Organización de Estados Americanos (OEA) y de la Comisión Económica para América Latina y el Caribe (CEPAL) en 1948, junto a la conformación de la Sociedad Interamericana de Planificación (SIAP) en 1956, se alinearon, junto a otros organismos, en la legitimación de la integración regional y el discurso planificador, propagado hacia las distintas entidades nacionales vía la promoción de seminarios y encuentros académicos. Dentro de ese contexto, el planning estimuló la circulación de ideas y debates continentales acerca de las soluciones sobre la vivienda masiva. En ese sentido, el artículo propone una aproximación a ciertas propuestas materializadas en el ámbito argentino de fines de los años cincuenta, específicamente las alcanzadas en el Instituto de Vivienda de la Provincia de Buenos Aires (IVBA).

La idea de planificación regional promovía la construcción de modelos que apuntaban a problematizar la excesiva concentración geográfica. Se entendía que una metodología adecuada impulsaría la racionalización de las actividades económicas, redundando en una solución a las deficiencias en la productividad y en las desigualdades demográficas. En ese sentido, las economías de mayor grado de desarrollo podrían intensificar el proceso de industrialización por sustitución de importaciones (ISI), transitando de la etapa de producción de bienes de la industria liviana hacia la pesada, hasta alcanzar la fabricación de productos de consumo durables, como maquinarias, automóviles y aviones.

Bajo el supuesto de que los Estados Unidos condensaba el modelo más avanzado de la sociedad liberal, la expansión del “reformismo” norteamericano, tal como ha argumentado Gorelik, entendía a la modernización de las economías continentales como un sucedáneo de la “revolución” por la vía capitalista, un procedimiento “neutral” asequible a través de mecanismos de innovación programática, intelectual e institucional. En ese contexto, los nuevos centros organismos hemisféricos funcionaron como usinas de un renovado pensamiento teórico y práctico, y el territorio latinoamericano pasó a ser un espacio de experimentación y debates. La gobernación de Rexford Tugwell en Puerto Rico (1941-1946), en donde se promovió un programa de reorganización y desarrollo agrícola e industrial, se convirtió en el laboratorio para una generación de expertos norteamericanos de gran predicamento en América Latina (especialmente, Francis Violich y John Friedmann) y de planificadores latinoamericanos (como Rafael Picó o Luis Lander) que cumplieron roles centrales en las instituciones panamericanas (Gorelik, 2014: 8-13). El caso portorriqueño fue referencial para la conformación del CINVA (Centro Interamericano de Vivienda y Planeamiento) en 1951, erigido en Bogotá como un proyecto dentro del Programa de Cooperación Técnica de la OEA, en colaboración con la Universidad Nacional de Colombia (UNC) y el Instituto de Crédito Territorial (ICT) colombiano, en donde el norteamericano Leonard Currie fue designado como su primer director.

La formalización de estas iniciativas en la llamada “Alianza para el Progreso”, impulsada bajo el gobierno de Kennedy en 1961, acentuó el plan reformista mediante el incentivo a la inversión de capitales extranjeros, la promoción de desarrollos tecnológicos y la capacitación de expertos. El acuerdo hemisférico debía ser interpretado en cada gobierno por un grupo de tecnócratas, responsables de programar los medios para corregir los “desequilibrios” sociales y económicos. Mediante distintos mecanismos, como la Agencia de los Estados Unidos para el Desarrollo Internacional (United States Agency for International Development, US-AID), el gobierno norteamericano extendió su programa de cooperación, que no sólo incluía la promesa de inversión de veinte mil millones de dólares hacia América Latina en una década, sino la asistencia técnica para reformas del suelo, salud, educación y programas habitacionales (Benmergui, 2009: 304-305). Bajo la premisa de que la vivienda resultaba un estímulo para el desarrollo económico, el financiamiento directo del organismo estadounidense a los países latinoamericanos estaba destinado a complementar los montos otorgados por el Fondo de Fideicomiso del Banco Interamericano de Desarrollo (BID), creado en 1959, que se destinaban primordialmente a planes de vivienda e infraestructura.

No obstante, tal como afirmó Arturo Almandoz, en líneas generales la industrialización inconclusa en el continente habría continuado -antes que precedido- a los procesos de urbanización, por lo que la sustitución de importaciones no redundó en un efecto dinamizador sobre la actividad económica y la transformación demográfica. En ese sentido, gran parte de las migraciones campo-ciudad habían sido estimuladas por la inexistencia de reformas agrarias en el sector primario de la economía, así como por ciertas políticas de desarrollo urbano puestas en marcha por los Estados. Los niveles de urbanización, según los censos de los años cincuenta, prácticamente duplicaban la participación industrial en Argentina, Chile, Venezuela, Colombia y Brasil. Una dinámica de “inflación urbana” o “sobreurbanización” fue entonces consecuencia de la falta de absorción de esos grupos por el sistema productivo, que derivó en una población ajena al sistema productivo y dependiente de la economía informal (Almandoz, 2008: 62).

Dos soluciones para la casa latinoamericana

Dentro de ese contexto, surgieron dos posiciones antagónicas desde los gobiernos latinoamericanos para afrontar el déficit habitacional que, como corolario natural del proceso de “sobreurbanización”, se exteriorizaba en la conformación creciente de “barriadas” o “villas de emergencia” suburbanos. Por un lado, la planificación dirigida, centralizada y articulada plenamente desde las instituciones del Estado en todas las etapas de la producción de la vivienda social, habilitó la edificación de grandes bloques, como los corbusieranos de la Urbanización 23 de enero en Caracas, proyectados por Carlos Raúl Villanueva en su rol de “arquitecto consultor” del Taller de Arquitectura del Banco Obrero, dentro del Plan Nacional de Vivienda durante la presidencia de Pérez Jiménez en Venezuela (1952-1958). Estas iniciativas fueron usualmente criticadas desde parte del ámbito académico o bien desde algunos organismos continentales, quienes señalaban la proximidad a un “dirigismo” corporativo o “soviético”, cuestionaban los conflictos asociados a la vida comunitaria en los grandes multifamiliares o bien enumeraban los costos emergentes en la administración y mantenimiento de sus estructuras. En el amplio estudio Housing in Latin America de Marcia Koth, Julio Silva y Albert Dietz, publicado por el Massachusetts Institute of Technology (MIT) en 1965, se señalaba:

Si bien la mayoría de los programas gubernamentales parecen ser mucho más exitosos, el programa de construcción del gobierno venezolano bajo el régimen de Pérez mencionado anteriormente, es un muy buen ejemplo del desarrollo de viviendas que contribuye a una estructura social dentro de la comunidad habitacional en conflicto con las condiciones más generales de los intereses nacionales. Proporcionan un excelente ejemplo de actitudes que impiden la resolución de problemas de vivienda urbana (Koth et al, 1965: 45).1

Como contraparte, la divulgación de distintas modalidades de “autoconstrucción” de viviendas se fundamentaba en la descentralización de la injerencia del Estado en la producción habitacional, delegando parte del proceso en la programación conjunta y la fuerza de trabajo de los mismos usuarios. A tono con la experiencia del CINVA, los investigadores del MIT se manifestaron a favor de las soluciones de construcción de viviendas por el sistema de “ayuda mutua”. En un extenso viaje por distintos países latinoamericanos en 1963, Dietz apuntaba al reconocimiento de las “diferentes actitudes” de los trabajadores de bajos ingresos en relación a sus propias viviendas, erigidas por sus familias, oportunamente mantenidas y diferenciadas de otras. El Dr. Walter Harris de la Universidad de Yale, asesor principal de Vivienda y Planificación en la OEA, sostenía a partir de su rol de consultor en el CINVA en 1961, que “esas actitudes afectaban fuertemente la elección de los materiales de la construcción en ciertos países” (Koth et al, 1965: 45).

Como es sabido, la legitimación de la “autoconstrucción” como solución antagónica al dirigismo del Estado fue ampliamente impulsada por John Turner en su experiencia en Perú a partir de 1957. Estableciendo los límites y aporías del ideario dirigista, Turner desarrolló distintos ensayos sobre la participación de los usuarios en la construcción de sus viviendas, desestimando la atribución central del Estado en los procesos de diseño y ejecución de las mismas:

El problema del mantenimiento del orden urbano y de condiciones de vivienda aceptables como ‘normales’ ha superado ya la capacidad de los gobiernos de la mayoría de las naciones desarrolladas. Por lo tanto, los gobiernos de los países en pleno proceso de urbanización, países que, por lo general, son pobres y subdesarrollados, fracasarán si se limitan a la construcción y financiación de viviendas por el Estado (Turner, 2018: 69).

A partir de la experiencia peruana, divulgada internacionalmente a través de la edición especial de la revista Architectural Design de agosto de 1963, Turner señaló distintas versiones de la noción de “autoconstrucción” como opción participativa: la “autoconstrucción espontánea” surgía de la toma informal de tierras, su fraccionamiento, diseño y edificación por parte de los usuarios sin financiamiento alguno ni asistencia técnica; la “autoconstrucción dirigida”, implicaba un grado de planificación por parte de un organismo público, que establecía distintas condiciones (ubicación del lote, planos y especificaciones técnicas, plan y procedimientos de obra, proveedores de materiales, etc) dentro de un sistema de trabajo que finalmente involucraba a los usuarios con su fuerza de trabajo para la edificación, guiados por asistentes y técnicos; y la “autoconstrucción auxiliada”, que significaba un cambio de escala y el financiamiento auditado de iniciativas administradas en forma comunitaria, bajo el asesoramiento y supervisión de un responsable técnico. Para Turner, el problema no era la generación de asentamientos en sí, ya que los entendía como vehículos para el cambio social, sino que se desarrollaran fuera de todo control. Era menester entonces integrarlos a la ciudad, y su ordenamiento dependería del apoyo que el gobierno ofreciera a las iniciativas populares (Turner, 2018: 69-77).

Hilario Zalba, el embrión de la vanguardia y la enseñanza de la arquitectura moderna

En línea a los debates hemisféricos, la voz y obra de Hilario Zalba en la Argentina emergió como un aporte esencial en la consideración de las modalidades participativas y en los procesos de sistematización e industrialización de la vivienda. Zalba había nacido en la ciudad bonaerense de Balcarce en 1912, graduándose como arquitecto en 1938, y formó parte de la generación de arquitectos que en la primavera de 1938 conformaron el Grupo Austral, paradigma de la vanguardia moderna en el ámbito local.

Tempranamente, Zalba orientó sus intereses y estudios en vivienda social y urbanismo a la actividad pública. En la Dirección de Vialidad de la Provincia de Buenos Aires, donde permaneció desde 1938 hasta 1940, realizó un proyecto de vivienda para peones camineros, y en 1942, se convirtió en proyectista de la Dirección de Escuelas de la Provincia de Buenos Aires. Al año siguiente, fue nombrado Jefe de la División Urbanización y Vivienda del Ministerio de Obras Publicas provincial. En paralelo, inició una prolífica labor en la enseñanza de la arquitectura, incorporándose entre 1942 y 1946 como docente a la Facultad de Ciencias Fisicomatemáticas (FCF) en la Universidad Nacional de La Plata (UNLP). Este último año se trasladó con su familia a San Miguel de Tucumán para formar parte de la experiencia inédita del Instituto de Arquitectura y Urbanismo de la Universidad Nacional de Tucumán (IAU-UNT), donde participó junto a notables arquitectos de la época como Jorge Vivanco, Horacio Caminos y Eduardo Sacriste, entre otros. Apuesta geopolítica-cultural en la primera presidencia de Perón, la edificación de la Ciudad Universitaria en el Cerro San Javier, una acrópolis próxima a la capital provincial, apuntaba a crear un foco de irradiación y atracción en el noroeste argentino hacia la región y los países andinos. En la inmediata posguerra desembarcaron también varios destacados arquitectos e ingenieros italianos. Algunos como Luigi Piccinato y Pier Luigi Nervi pasaron fugazmente, otros como Cino Calcaprina, Ernesto Nathan Rogers y Enrico Tedeschi se radicaron en Tucumán, dedicándose a la enseñanza.2 La mayoría, nucleados en Italia tras la revista Metron-architettura, conformaban la segunda generación de arquitectos modernos impregnados por la teoría organicista que difundió en los años cincuenta otro italiano, Bruno Zevi.3 Entre 1947 y 1956, Zalba participó en el plan general y en diversos proyectos de la Ciudad Universitaria, como el diseño y dirección de la Facultad de Arquitectura y de la Residencia Estudiantil (Sondereguer, 2004: 210). Si bien en la escuela tucumana existió una convergencia de saberes y formaciones profesionales entre actores locales y extranjeros en una misma clave moderna, introduciendo la línea orgánica a la academia, probablemente su mayor aporte haya sido el giro que produjo en la pedagogía de la arquitectura local. A través del IAU-UNT surgió, en el campo de la enseñanza, la necesidad de vincular la categoría cultural de una región con sus posibilidades productivas y tecnológicas. Como bien ha señalado Fernández, esta experiencia se trató “de una combinación de empirismo regionalista de corte organicista junto al reconocimiento de un rigor racionalista, sobre todo en lo referente al manejo del clima y la tecnología” (Fernández, 1996: 90), logrando como síntesis mayor una equilibrada dialéctica entre teoría y praxis de la arquitectura y el planeamiento urbano, en la cual el modernismo criollo supo traducir la cultura de lo ajeno en lo propio.

En 1951 se creó la carrera de Arquitectura y del Departamento de Arquitectura y Urbanismo (DAU) dentro de la FCF - UNLP. Una vez resuelta la crisis institucional surgida con la irrupción de la “Revolución Libertadora”, cuando el Decano Interventor de la FCF, ingeniero Alberto T. Casella (1955/1956) “insinuó el cierre de la carrera al seguir sin solucionarse un presupuesto acorde a las necesidades departamentales” (Longoni et al, 2009: 3), para la continuidad de la carrera de Arquitectura platense en junio de 1956, se designó a Zalba en la jefatura departamental, así como también para la titularidad de la materia Teoría de la Arquitectura. Su regreso a La Plata y designación como nuevo Jefe del DAU estuvo acompañada por la llegada de un nutrido grupo de docentes y estudiantes del ex IAU, presumiblemente con la idea de restaurar la experiencia tucumana. En los nuevos cargos, “sobresalía Jorge Vivanco,4 quien dictó en 1956 la materia Sociología Urbana5 y en 1957, al crearse la “Sección Urbanismo” dentro del Departamento, fue titular en los dos Urbanismos (Longoni et al, 2009: 11-12). Por su parte, las expectativas de los estudiantes, puestas en la gestión de Zalba como Jefe Departamental, pronto mutaron hacia un escenario de tensión, que finalizó con su desplazamiento y renuncia, aunque continúo dictando clases como profesor titular en Teoría de la Arquitectura I y II hasta 1964 (Carranza, 2012: 85-91). (Figura 1, 2, 3 y 4)

Figura 1: Arq. Hilario Zalba, Sara Remom de Zalba y sus hijas Susana y Patricia, hacia Mar del Plata, 1948. 

Figura 2: Maqueta del anteproyecto del Instituto de Aeronáutica, Hilario Zalba y Antonio Bonet, Facultad de Ciencias Fisicomatemáticas, FCF-UNLP, 1944. 

Figura 4: Estudio urbano y exposición realizado -junto a estudiantes- por los Arqs. Hilario Zalba y Jorge Vivanco (Prof. de Sociología Urbana) para el Plan Regulador de la ciudad de La Plata. Diario “El Día”, 9 de febrero de 1957. 

La sistematización en la construcción de la vivienda. El IVBA en el debate latinoamericano

El giro en la política marcado por el golpe militar de 1955 que derrocó a Perón, propició un movimiento en el rol profesional de Zalba, quien asumió responsabilidades de mayor protagonismo en la función pública. En 1956 fue nombrado miembro de la Comisión de Urbanismo de la Comisión Nacional de la Vivienda, que había sido impulsada por el presidente de facto general Aramburu. Pero de mayor significación fue su experiencia como presidente del Instituto de la Vivienda de la Provincia de Buenos Aires (IVBA), en paralelo al gobierno provincial de Oscar Allende (1958-1962). El organismo había sido creado en 1956, y contaba como antecedentes al Instituto de la Vivienda Obrera de 1937, luego sucedido por la Dirección de la Vivienda Económica, conformada en 1951 y finalmente convertida en la Dirección de la Vivienda, dependiente del Ministerio de Obras Públicas. Según se detalla en la publicación de la “Memoria 1956-1999” del IVBA, para 1956 los organismos antecesores del IVBA habían terminado 6.529 viviendas obreras, mientras que otras 5.783 se encontraban en ejecución (Instituto de la Provincia de Buenos Aires. Memoria 1956-1999, s/f: 13).

En relación a las discusiones sobre la antinomia “autoconstrucción” versus “dirigismo”, en los fundamentos del decreto ley de constitución del IVBA, se especificaba que “la experiencia recogida en Dinamarca, Suecia, Noruega, Francia y algunos países americanos demuestra que el sistema de cooperativa aplicado a la construcción de viviendas arroja resultados positivos y concretos que es indispensable fomentar, puesto que traerá aparejado la reducción de costos en la construcción y el acceso a la vivienda propia para todos los sectores sociales”.6 Dentro de ese contexto, distintos estudios enmarcaron la emergencia del IVBA dentro de un proceso general de progresivo desplazamiento del Estado en su rol “benefactor” y centralizado en el desarrollo de soluciones habitacionales (Longoni et al, 2008: 82), señalando el giro del Instituto hacia la conformación de cooperativas y consorcios privados para la construcción de viviendas, con el corolario natural de la participación de los usuarios asistidos por especialistas. Los objetivos del Instituto se centraron en la creación de barrios obreros en continuidad de las políticas que habían promovido los organismos antecesores, pero ahora, bajo la conducción de un ente técnico especializado de carácter autárquico, que apuntaba al asesoramiento y fomento a la iniciativa privada para la construcción de viviendas. La normativa fundacional del Instituto afirmaba que “la crisis de la vivienda no puede hallar solución exclusiva en la acción oficial, sino que por el contrario y preferentemente, es en la reactivación de la iniciativa privada y en el concurso del pueblo todo de la Provincia (…) donde se encontraran los medios necesarios para encarar con firmeza y seriedad la solución del problema”.7 En ese sentido, las operaciones descentralizadas del IVBA, destinadas a la intervención de cooperativas o a modos de organización que priorizaban el aporte de mano de obra de los mismos destinatarios -como la “Acción Cooperativa”, que entre 1957 y 1968 materializó 450 viviendas-, fueron prioritarias y crecieron en cantidad en relación a la realización de conjuntos habitacionales centralizados del tipo “llave en mano”.

La labor de Zalba en la presidencia del IVBA coincidió con el giro de la entidad hacia la promoción de desarrollos cooperativistas y sistemas de autoconstrucción. No obstante, su interés por la industrialización y la vivienda tecnificada, independientemente de la modalidad dirigida o descentralizada, direccionó su gestión hacia la inversión y estudios sobre la prefabricación de materiales y el desarrollo de sistemas constructivos innovadores. Parte de sus ideas fueron divulgadas en la edición número 2 de la revista Obrador de 1963, donde denunciaba un déficit habitacional de dos millones de viviendas en todo el país a principios de los sesenta. El desajuste con el ritmo de la construcción de viviendas, que se desarrollaba a razón de tres unidades por cada mil habitantes, señalaba para Zalba una asimetría en la ecuación necesaria para resolver la cuestión. El problema se acentuaba al considerar la inversión pública en el sector, que totalizaba un 3% del producto bruto nacional, mientras que países como Alemania, que contaba con un crecimiento poblacional menor, destinaba el 10.3% de su producto. La complejidad de la escena analizada por Zalba se completaba con los efectos de la desvalorización de la moneda, que encarecía la producción y estipulaba, para inicios de la década, un plazo de nueve años de salario promedio para acceder a la vivienda propia. En esa dirección, Zalba conjeturaba que la solución al problema sólo podría atenderse mediante un proceso de industrialización de la vivienda, acompañado de una mejora en la productividad de la economía:

Puesto que es imprescindible y cada vez más apremiante seguir construyendo viviendas, no hay otra salida que obtener una mayor accesibilidad a la misma, para lo cual será necesario desarrollar dos procesos simultáneos: el primero, que afecta a todo el país, tendiente a obtener una mayor productividad en todos los órdenes, con lo que se incrementarán los ingresos per cápita y la capacidad adquisitiva, y el segundo, de orden técnico, tendiente a conseguir una reducción en los costos de construcción (Zalba, 1964: 55).

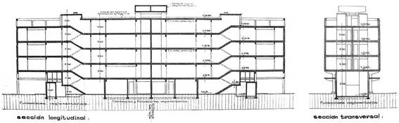
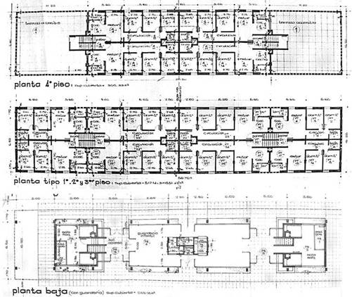
Ante esta situación, Zalba describía dos escenarios posibles para aumentar la producción de viviendas y reducir costos: disminuir superficies y bajar calidad de materiales e instalaciones, o bien, fomentar los procesos industriales de la construcción: “la industrialización de la vivienda, la prefabricación de elementos cada vez mayores (…) a la larga nos conducirá a la solución masiva del problema” (Zalba, 1964: 56). De este pensamiento es deudor el diseño de la tipología de monobloque “Prototipo”, una redefinición local de la Unidad de Marsella corbusierana, que aportó fragmentos del imaginario de vivienda colectiva del Área Metropolitana de Buenos Aires: Morón, San Martin, Quilmes, Berazategui, el barrio Moreno de Avellaneda y el emblemático bloque en la ciudad de La Plata. Sumando las unidades construidas en Bahía Blanca, se erigieron treinta y ocho bloques en la provincia de Buenos Aires, “idealmente destinadas a terrenos vacantes de barrios obreros existentes” (Ottavianelli, 2012: 122). Esa tipología se utilizó dentro del marco de la operatoria “Barrios Arquitectura” del IVBA como una pieza compacta, diseñado con una rigurosa economía de espacios, sistematización del método constructivo y reducción de costos. (Figuras 5, 6, 7 y 8)

Figura 5: Block Prototipo, Tolosa, La Plata, provincia de Buenos Aires. 

Figura 6: Block Prototipo, Barrio Moreno, Avellaneda, provincia de Buenos Aires. 

Figura 7: Block Prototipo. Plano plantas baja, tipo y 4to piso. 

Figura 8: 8 Block Prototipo. Plano sección longitudinal y transversal. 

El programa ATEPAM y la formación de consorcios de ayuda mutua

A través del decreto 11.223/58, el IVBA impulsó el “Estatuto Básico de Formación de Consorcios”, donde se proponía que los propios interesados en el armado de un consorcio de viviendas aportaran la mano de obra necesaria para la ejecución de las obras, dejando al Estado a cargo del aporte de los materiales, herramientas de trabajo y la asistencia técnica. En relación a esta iniciativa, Zalba desplegó una extensa labor pedagógica, preparando equipos de trabajo en base a estrictos modelos de racionalización y estandarización, direccionados a la construcción mediante sistemas prefabricados (placas murarías prefabricadas, sistemas livianos, etc.). La continuación del Estatuto fue la ley 6.707 de 1961 que posibilitaba al IVBA la ejecución de viviendas a través del sistema de Asistencia Técnica Esfuerzo Propio y Ayuda Mutua (ATEPAM), cuya normativa habilitaba al Instituto a gestionar el aporte de asistencia social, tierras, materiales, herramientas, equipos de trabajo y la asistencia técnica de las obras a ejecutar, o bien los fondos necesarios para afrontar tales gastos. Los integrantes de los consorcios y destinatarios de las viviendas, debían aportar su fuerza de trabajo bajo un estricto control laboral y de tareas. Los fondos necesarios para el financiamiento del programa habían surgido de un crédito de la United States Agency for International Development (US-AID), en el marco de la asistencia financiera de la “Alianza para el Progreso”. Esto posibilitó la ejecución de 2.670 viviendas entre 1961 y 1976, consolidando una de las operatorias de la provincia con mayor producción de viviendas en el periodo (Longoni et al, 2008: 82-83).

Si bien las primeras producciones del IVBA pretendían mejorar la productividad de viviendas a partir de una necesaria reducción de costos, tal como se evidenció en la realización del concurso público de 1957 para la ejecución de viviendas industrializadas en la ciudad de La Plata, donde se realizaron ocho prototipos habitacionales (Longoni et al, 2008: 82-83), paulatinamente y ante el surgimiento de diversos inconvenientes, fueron adoptándose sistemas constructivos tradicionales como tecnología regular. Aunque la estandarización y el diseño modulado eran elementos de peso para lograr el éxito del programa ATEPAM, muchas veces las construcciones terminaron por resolverse mediante mampostería de ladrillo común o bloques de hormigón con cubierta de losa alivianada, más allá de la clara lógica modular reflejada en los prototipos de vivienda. Por otro lado, los antecedentes informativos de la Ley 6707/61 y el reglamento para la construcción de viviendas por el sistema ATEPAM,8 ponían en evidencia la rígida estructura organizacional impuesta a los consorcistas para el desarrollo de las viviendas, toda vez que cada miembro, más allá del aporte de su mano de obra, debía prestar consentimiento a los proyectos realizados por el Instituto -como toda modificación de planos y programas de realización que la entidad considerara necesaria-, desvirtuando el carácter presuntamente “participativo” de la operatoria.

Al momento de ejecutar las viviendas, el organismo tenía a su cargo la designación de los equipos técnicos, que estaban constituidos por un director de obra, un conductor de obra y un asistente social. Los conductores de obras tenían a su cargo la organización, enseñanza y dirección de los grupos de trabajo, eran los encargados de enseñar las técnicas constructivas y controlar la ejecución de acuerdo a los planes confeccionados, y, a su vez, llevaban el control de las horas trabajadas por los consorcistas. El encargado de supervisar estos trabajos era el director de obra, que también cumplía el rol de ser el nexo con el departamento técnico del IVBA. Mientras que el asistente social, vinculado al departamento social del Instituto, tenía a cargo la programación del trabajo social que demandaba el vínculo de los beneficiarios y sus familias. El Departamento Social del Instituto era el encargado de la selección de los beneficiarios del consorcio.

En cuanto a la propuesta arquitectónica, el programa ejecutó dos prototipos de vivienda en veintiséis partidos de la provincia de Buenos Aires. La tipología de viviendas apareadas en planta baja, con una superficie de 60 m2, contaba con dos dormitorios, sala de estar, cocina, baño y lavadero. Una segunda tipología de dos niveles, agrupados en hilera y de aproximadamente 78 m2, presentaba una menor ocupación del suelo, y estaba conformada por sala de estar, cocina, baño y lavadero en planta baja, mientras que en el primer nivel se encontraba el área privada con dos dormitorios.

La profusa normativa desplegada desde el IVBA para cimentar una mejora en la productividad de las viviendas durante sus primeros años de funcionamiento reflejó el impacto de los debates disciplinares desplegados en el hemisferio. La expansión reformista norteamericana fomentó la lógica de la planificación en la producción habitacional -como vía de resolver los desequilibrios de la sobreurbanización-, proyectada capilarmente en las tecnocracias gubernamentales a través de programas de carácter descentralizado. La voluntad de sistematización, así como la orientación hacia la modalidad de autoconstrucción en el ATEPAM, pusieron en evidencia, no obstante, las paradojas y límites del proceso de industrialización de la vivienda y de los supuestos humanistas de los procesos participativos, toda vez que esos métodos, en los hechos, combinaron tecnologías tradicionales, quedaron usualmente restringidos a operaciones de escala limitada y fueron muchas veces direccionados verticalmente desde las estructuras del ámbito oficial. (Figuras 9 y 10)

Figura 9: Prototipo del sistema ATEPAM con dos plantas, Tolosa, La Plata, provincia de Buenos Aires. 

Figura 10: Prototipo del sistema ATEPAM con dos plantas, Tolosa, La Plata, provincia de Buenos Aires. 

Referencias

Almandoz, A. (2008). Despegues sin madurez. Urbanización, industrialización y desarrollo en la Latinoamérica del siglo XX. Revista Eure, Vol. XXXIV, Nº 102, Santiago de Chile: pp. 61-76. http://dx.doi.org/10.4067/S0250-71612008000200004. [ Links ]

Benmergui, L. (2009). Alliance for Progress and housing policy in Rio de Janeiro and Buenos Aires in the 1960s. Revista Urban History 36, Cambridge University, Cambridge: pp. 303-336. Recuperado de https://www.cambridge.org/core/journals/urban-history/article/alliance-for-progress-and-housing-policy-in-rio-de-janeiro-and-buenos-aires-in-the-1960s/8B80C39DA89D90E581439ADB2561C514. [ Links ]

Carranza, M. (2012). La (re)fundación del DAU, en Cultura arquitectónica, formación universitaria y emergencia de arquitectos modernos en La Plata (1955-1966). Tesis de Maestría, Universidad de Buenos Aires. pp.85-91. Inédita. [ Links ]

Fernández, R. (1996). La Ilusión Proyectual. Una Historia de la Arquitectura Moderna Argentina. 1955-1995. Mar del Plata: FAUD-UNMdP. [ Links ]

Gorelik, A. (2014). Miradas cruzadas. El viaje latinoamericano del planning norteamericano. Revista Bifuraciones, Revista de estudios culturales urbanos, Nro. 18. Talca: Facultad de Ciencias Sociales y Económicas, Universidad Católica del Maule. Recuperado de http://www.bifurcaciones.cl/2014/12/gorelik/. [ Links ]

Instituto de la Vivienda de la Provincia de Buenos Aires. Memoria 1956-1999. Departamento de Gestión. IVPBA. La Plata, S/f. Gentileza Arq. María Elina Igarzábal. [ Links ]

Koth, M; Silva, J; Dietz, A (1965). Housing in Latin America. Cambridge: The M.I.T. Press. [ Links ]

Longoni, R.; Molteni, J.C.; Galcerán, V. (2008). De la vivienda obrera a la vivienda de interés social en la provincia de Buenos Aires (1936-1976). Revista de Historia Bonaerense Nro. 33. Haedo: Instituto y Archivo Histórico de Morón. [ Links ]

Longoni, R.; Molteni, J.C.; Galcerán, V.; Perez, R.; Carranza, M.; Fonseca, J. y Bottega, C. (2009). El Departamento de Arquitectura UNLP. Primeros egresados. Primeras obras, en Jornadas de Investigación de la FAU 2009. III Jornadas de Becarios y IV Jornadas de Proyectos de Investigación. La Plata: FAU-UNLP. [ Links ]

Ottavianelli, A. Block Prototipo (2012). Hilario Zalba. Modelo de barrio de interés social, en Arias Incollá, M. (comp). Patrimonio Arquitectónico. Buenos Aires, AGEA. [ Links ]

Sondereguer, P. (2004). Zalba, Hilario A, en Liernur, J.F. y Aliata, F. (compiladores), Diccionario de Argentina en la Argentina s/z, Buenos Aires: AGEA. pp. 210-211. [ Links ]

Turner, J (2018). Autoconstrucción. Por una autonomía del Habitar. Logroño: Pepitas de Calabaza. [ Links ]

Zalba, H. (1964). Acotaciones sobre la situación de la vivienda. Revista Obrador Nro. 2. Buenos Aires. pp. 55-58. [ Links ]

Cómo citar: Longoni, L. E., Gregoric, A., Labra, C. S., & Carranza, M. (2023). Dirigismo y autoconstrucción: El programa ATEPAM y los debates durante la presidencia de Hilario Zalba en el Instituto de la Vivienda de la provincia de Buenos Aires, Argentina (1958-1962). Anales De Investigación En Arquitectura, 13(2). https://doi.org/10.18861/ania.2023.13.2.3539

Aprobación final del artículo: Ma. Arq. Andrea Castro Marcucci, editora en jefe aprobó la publicación de este artículo.

Contribución de autoría: Arq. Lucas Emilio Longoni: responsable del proyecto de investigación, conceptualización, preparación del manuscrito. Arq. Alejandro Gregoric: Análisis formal de las obras, investigación. Arq. Claudio Sebastián Labra: Análisis formal de las obras, investigación. Arq. Martin Carranza: Responsable del proyecto de investigación, conceptualización, preparación del manuscrito.

1Traducción propia de los autores, del original: “While most government programs appear to be much more successful, the previously mentioned construction program of the Venezuelan government under the Pérez regime, is one very good example of the development of housing which contributes to a social structure within the housing community in conflict with more general national interests. They provide an excellent example of attitudes which impede resolution of urban housing problems”.

2Enrico Tedeschi permaneció en la Argentina desarrollando una actuación profesional signada por la dedicación a la enseñanza y la investigación de la historia y la teoría de la arquitectura, siendo además de autor de numerosos libros, así como un pionero en la realización de estudios referidos a arquitectura, clima y utilización de la energía solar

3Bruno Zevi en el año 1944 fundó la Associazione per l´Architettura Organica (APAO) y el año siguiente la revista Metron-architettura, convirténdose en uno de los teóricos más sobresalientes del ámbito italiano de la posguerra.

4Jorge Vivanco fue responsable de la experiencia del IAU, protagonista inicial del grupo Austral y entusiasta promotor de la “enseñanza viva”.

5Resolución nº 198 del 9 de abril de 1957

6Decreto Ley 469/56.

7Decreto Ley 469/56.

8Resolución 189/68

Recibido: 11 de Mayo de 2023; Aprobado: 11 de Julio de 2023

Creative Commons License Este es un artículo publicado en acceso abierto bajo una licencia Creative Commons